Vuokrataan liiketilat - Järvenpää
Helsingintie 14, 04400 Järvenpää #10713862
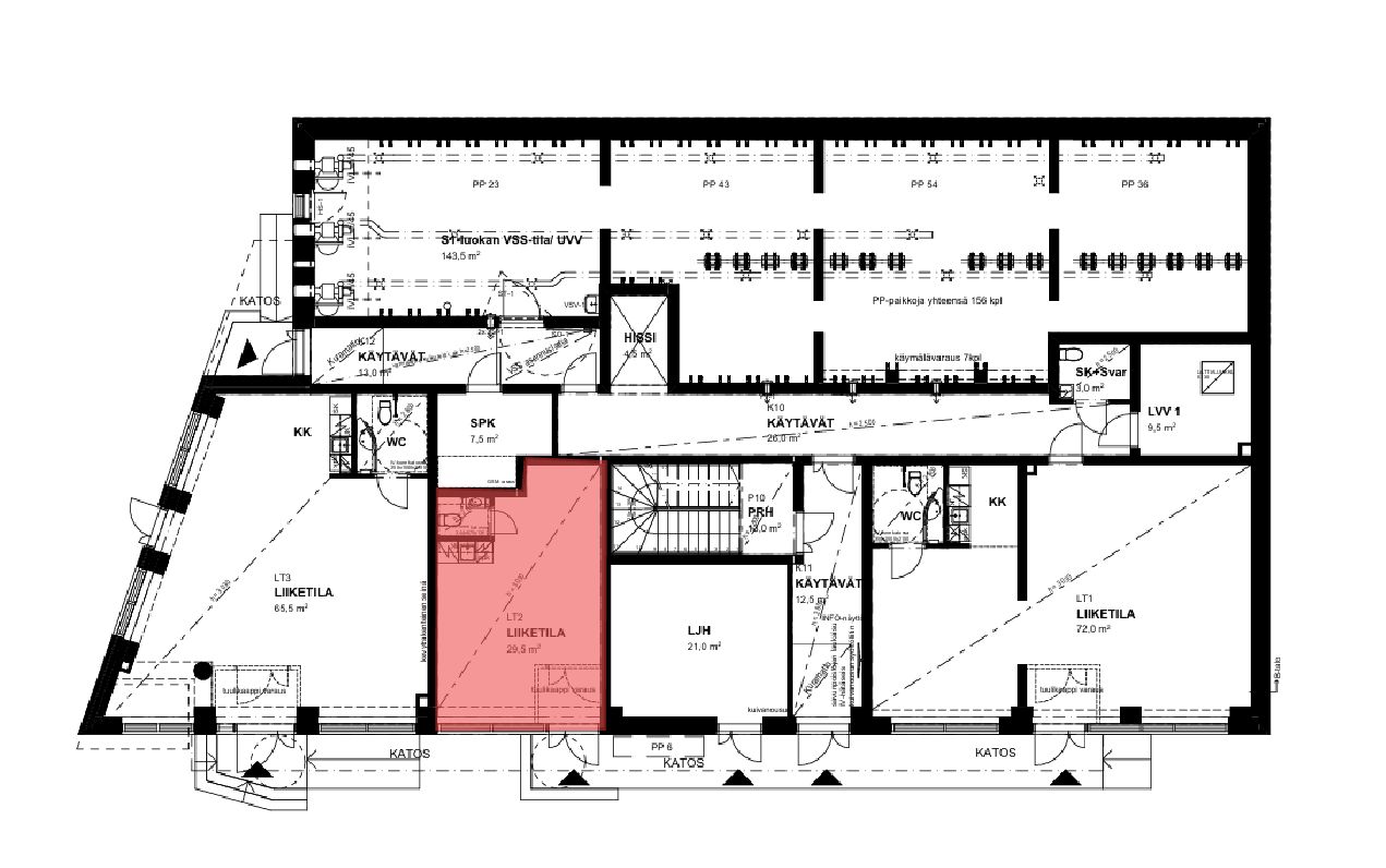
Vuokrattavana katutason pieni liiketila asuintalon kivijalasta.
Osoite
Helsingintie 14, 04400 Järvenpää
Tilatyyppi
Liiketilaa
29,5 m2
Kiinteistö
Vuokrattavana katutason pieni liiketila asuintalon kivijalasta. Tilassa on avotilaa, wc sekä pieni keittiö. Tila ei sovellu ravintolatilaksi.
Sijainti
Keskusta, Järvenpää
Palvelut
Alueen palvelut.
Kulkuyhteydet
-Juna
-Bussi
-Oma auto
-Bussi
-Oma auto
Vapautuu
01.01.2026
Kerros
1
Energiatehokkuusluokka
Ei lain edellyttämää energiatodistusta
Katutasossa
Näkyvällä paikalla
Ota yhteyttä
REALIUM OY LKV
Tammasaarenkatu 1, 00180 Helsinki
Vaihde:
Näytä puhelinnumero
010 326 346
Tuomo Mäkelä
tuomo.makela@realium.fi
p.
Näytä puhelinnumero
044 050 1158
Joel Keto
joel.keto@realium.fi
p.
Näytä puhelinnumero
045 317 0330
KAIKKI TILAVAIHTOEHDOT KERRALLA!
SOITA - MEILAA JA TILAA NÄYTTÖ!
Ilmainen palvelu tilanhakijoille.
Kartoitamme parhaat tilavaihtoehdot.
Kaikki kohteet eivät ole netissä.
Pyydä lisätietoa
