Vuokrataan liiketilat - Helsinki
Fredrikinkatu 48, Kamppi, 00100 Helsinki #10713856
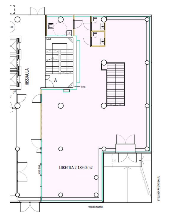
Vuokrattavana katutason liiketilaa Kampissa, joka soveltuu myymäläksi tai asiakaspalvelupisteeksi.
Osoite
Fredrikinkatu 48, 00100 Helsinki
Tilatyyppi
Liiketilaa
189 m2
Kiinteistö
Vuokrattavana katutason liiketilaa Kampissa, joka soveltuu myymäläksi tai asiakaspalvelupisteeksi.
Sijainti
Kamppi, Helsinki
Pysäköinti
Tarjolla pysäköintitilaa autoilijoille ja työpaikkapyöräilijöille on varattu pyöräparkki.
Palvelut
Ydinkeskustan palvelut.
Kulkuyhteydet
-Metroasema 200 m
-Raitiovaunupysäkki 400 m
-Bussipysäkki 100 m
-Juna-asema 800 m
-Raitiovaunupysäkki 400 m
-Bussipysäkki 100 m
-Juna-asema 800 m
Vapautuu
Heti
Kerros
1
Energiatehokkuusluokka
F2007
Katutasossa
Näkyvällä paikalla
Hissi
Ota yhteyttä
REALIUM OY LKV
Tammasaarenkatu 1, 00180 Helsinki
Vaihde:
Näytä puhelinnumero
010 326 346
Tuomo Mäkelä
tuomo.makela@realium.fi
p.
Näytä puhelinnumero
044 050 1158
Joel Keto
joel.keto@realium.fi
p.
Näytä puhelinnumero
045 317 0330
KAIKKI TILAVAIHTOEHDOT KERRALLA!
SOITA - MEILAA JA TILAA NÄYTTÖ!
Ilmainen palvelu tilanhakijoille.
Kartoitamme parhaat tilavaihtoehdot.
Kaikki kohteet eivät ole netissä.
Pyydä lisätietoa
