Vuokrataan toimistotilat - Helsinki
Vattuniemenranta 2, 00210 Helsinki #10712750
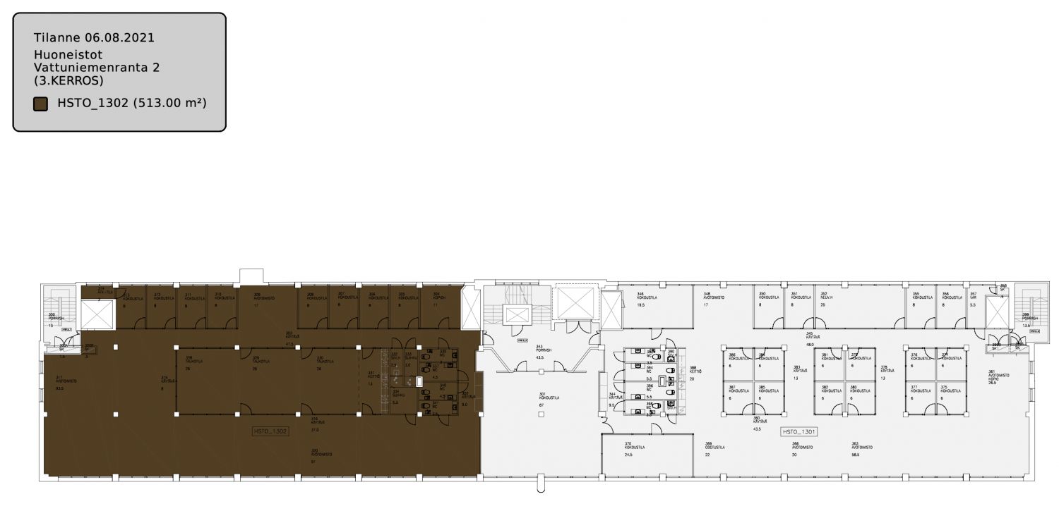
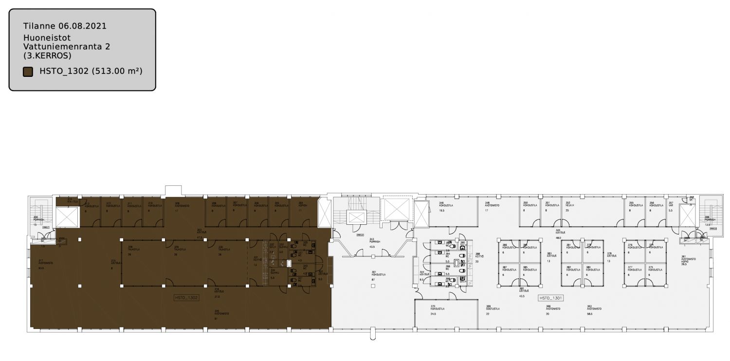
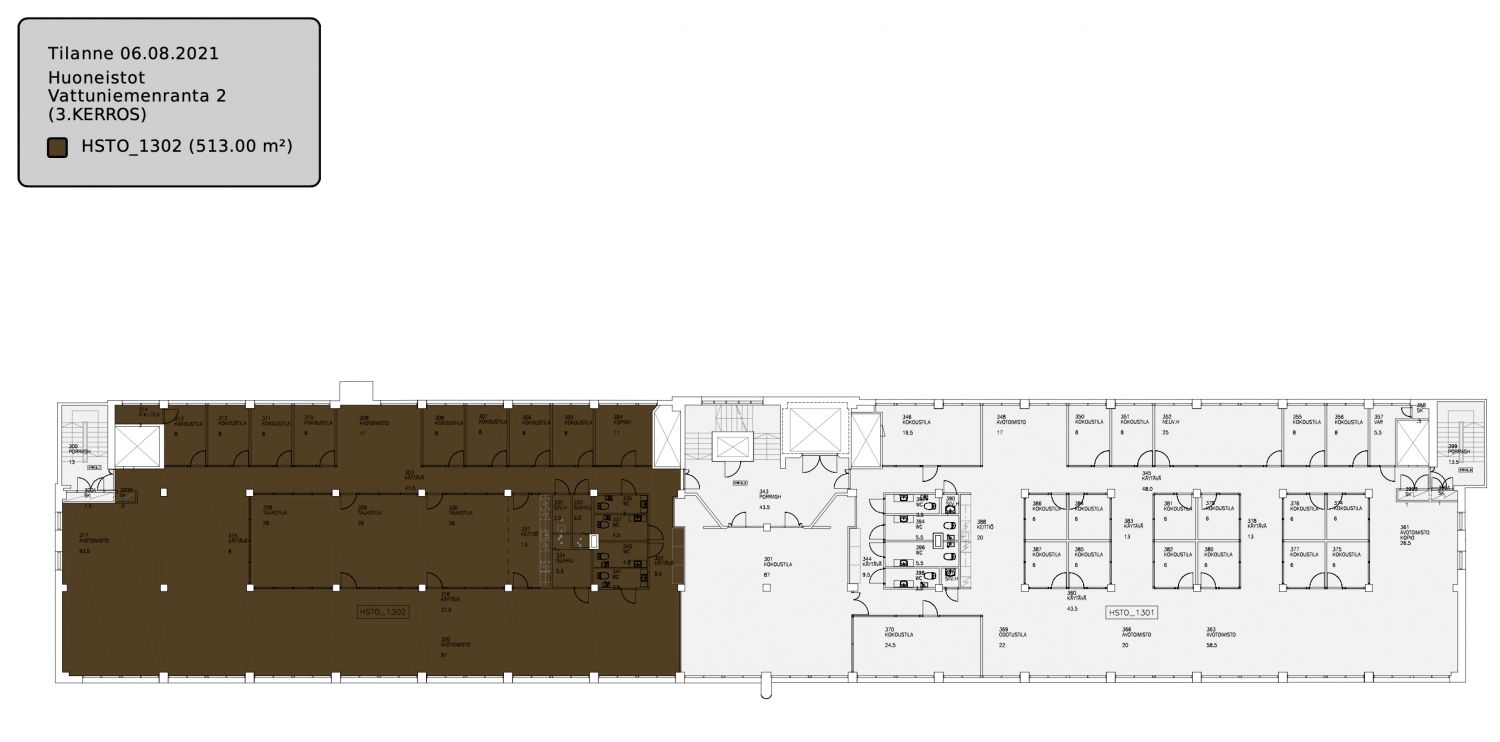
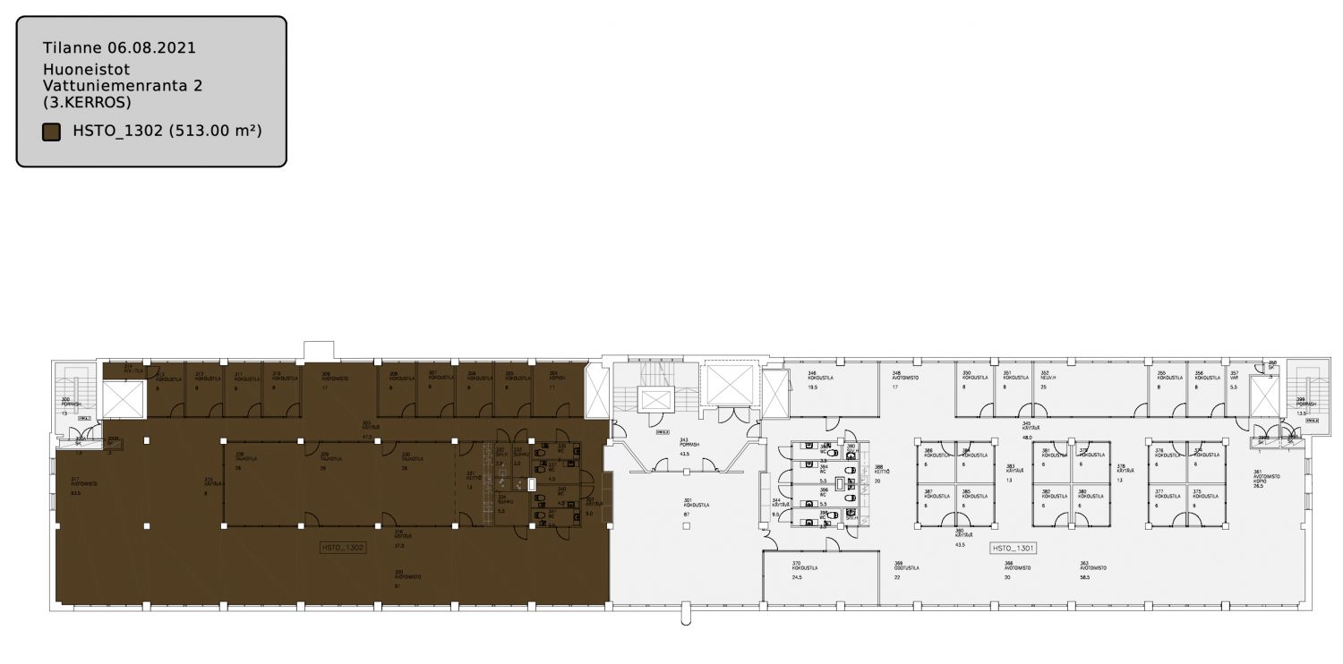
Hieno kolmannen kerroksen modernisoitu, jäähdytetty toimisto, joka koostuu pääsosin valoisasta avotilasta. Tilassa myös muutama toimistohuone sekä neuvottelutilat.
Toimisto sijaitsee loistavalla paikalla Lauttasaaren Vattuniemen rannassa. Kiinteistöön pääsee helposti autolla, sekä julkiset liikkuvat läheltä.
Kiinteistössä palvelee oma lounasravintola, lisäksi lähialueella muita lounaspaikkoja. Autopaikkoja on vuokrattavana kiinteistön pihalla. Mahdollista myös vuokrata varastotilaa toimiston yhteyteen, kuten 30, 37 tai 77 m2 kokoisina.
Lisätietoja numerosta 020 7290 710. Lisää kohteita osoitteessa www.premises.fi.
Energialuokka F.Kerros: 3
Liitetiedostot
CRE PREMISES
Puh. Näytä puhelinnumero 020 7290 710
Vantaankoskentie 14
01670 VANTAA
