Vuokrataan liiketilat - Helsinki
Bulevardi 32, Punavuori, 00120 Helsinki #10712625
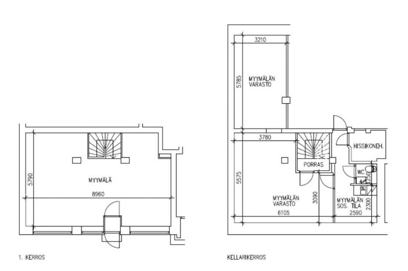
Vastaremontoitu kahden kerroksen liiketila. Katutasossa 53 m2 ja kellarissa 61m2. Tilassa on uusittu lattiat ja maalattu seinät. Ei sovellu kahvilaksi tai ravintolaksi. Edullinen vuokra. Ota yhteyttä ja sovi esittely, vuokrauspalvelumme on tilanhakijoille ilmainen.
Osoite
Bulevardi 32, 00120 Helsinki
Tilatyyppi
Liiketilaa
114 m2
Pohjapiirros
Kiinteistö
Käynti Albertinkadun puolelta.
Sijainti
Punavuori
Pysäköinti
Kadulla
Palvelut
Useita ruokaravintoloita 5 minuutin säteellä.
Kulkuyhteydet
Ratikka Bulevardilta.
Vapautuu
Heti
Katutasossa
Ota yhteyttä
Senaatin Notariaatti Oy LKV
Lämmittäjänkatu 4 A
FIN-00880 Helsinki
Tel:
Näytä puhelinnumero
+358 9 7745 100
Pyydä lisätietoa
