Vuokrataan toimistotilat - Helsinki
Töölönkatu 4, Etu-Töölö, 00100 Helsinki #10711803
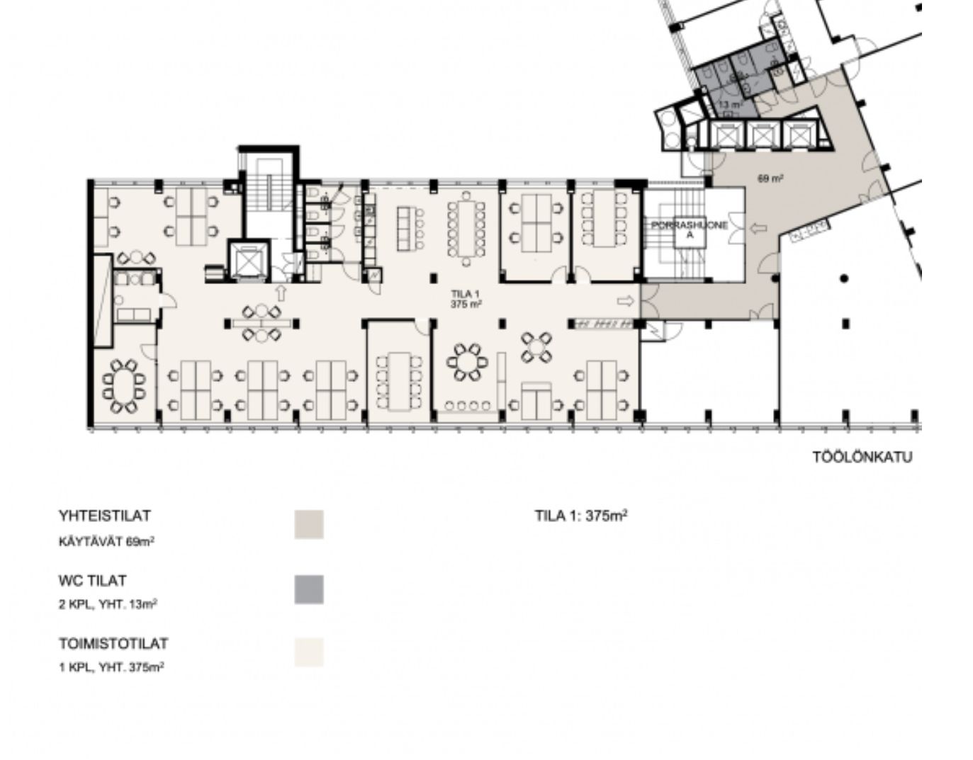
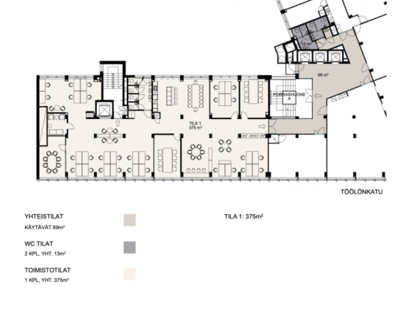
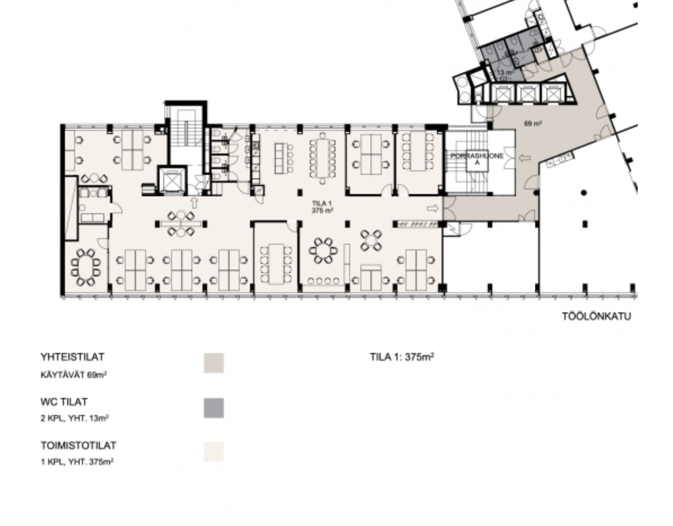
Helsingin Kuparitalo on arvokkaan oloinen, mutta moderni kiinteistö valtakunnan päätöksenteon ytimessä aivan Eduskuntatalon vieressä. Historiasta Outokummun pääkonttorina kertoo niin julkisivussa kuin monissa sisätiloissakin käytetty kupari.
Kuparitalo tarjoaa henkilöstöravintolan ja poikkeuksellisen hyvät catering-palvelut. Kiinteistössä on hissi sekä autopaikkoja pihalla. Autopaikkoja on myös vuokrattavissa naapurikiinteistöltä.
Kohde sijaitsee Etu-Töölössä hyvien kulkuyhteyksien ja palveluiden varrella, kävelymatkan päässä Kampin keskuksesta.
Lisätiedot 020 7290 710. Lisää kohteita osoitteesta www.premises.fi
Kohteella ei ole lain edellyttämää energiatodistusta tai energialuokka ei tiedossa.Kerros: 4
CRE PREMISES
Puh. Näytä puhelinnumero 020 7290 710
Vantaankoskentie 14
01670 VANTAA
