Vuokrataan toimistotilat, liiketilat, työtilat - Porvoo
Mannerheiminkatu 13, 06100 Porvoo #10711625
Vuokrataan toimiva liiketila Porvoon keskustassa! Vuokra 699€/kk + alv
Osoite
Mannerheiminkatu 13, 06100 Porvoo
Tilatyyppi
Toimistotilaa
50 m2
Liiketilaa
50 m2
Työtilaa
50 m2
Yhteensä
50 m2
Virtuaaliesittely
Vuokra
699 €/kk + alv
Vuokraan sisältyy lämpö
Muuta
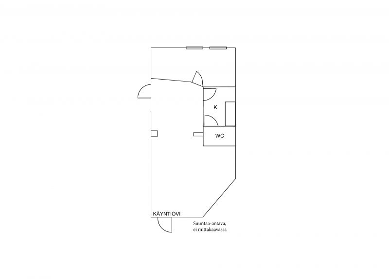
Aivan Porvoon keskustassa on vuokrattavana siisti ja toimiva liiketila. Noin 50m²:n huoneisto sijaitsee hyvällä paikalla kaupungin läpi kulkevan pääväylän varrella tyylikkäässä, 1940-luvun rakennuksessa.
Tilaan kuljetaan samasta ulko-ovesta viereisen liiketilan kanssa. Varsinaisen liikehuoneen lisäksi tilassa on ikkunallinen takahuone, pieni keittiö sekä wc. Kadunpuoleisessa ulko-ovessa on ikkuna, mutta omaa, isompaa näyteikkunaa huoneistossa ei ole.
Vesimaksu on 25€/kk. Sähkö veloitetaan mittauksen mukaan.
Kaikki Porvoon keskustan palvelut lounasmahdollisuuksineen ovat aivan nurkan takana.
Tila on erinomaisella paikalla pääväylän varrella!
Kohdetiedot
Sijainti
Katuosoite: Mannerheiminkatu 13, 06100 Porvoo
Kaupunginosa: Keskusta
Ympäristö: Kaupungin keskusta, liikerakennuksia, asuinrakennuksia, kaikki keskustan palvelut vieressä
Rakennus/huoneisto
Pinta-alat: Noin 50 m²
Kiinteistötyyppi: Kerrostalo
Huoneistoselitelmä: Liikehuoneisto
Kerros: 1
Kunto, varusteet ja palvelut: Siisti, hyväkuntoinen tila, takahuone, pikkukeittiö, wc
Rakennusvuosi: 1941
Lämmitys: Kaukolämpö
Vapautuu: Heti
Vuokrahinta ja kulut
Kuukausivuokra: 699 €/kk + alv
Vesi- ja sähkömaksu: Vesimaksu 25€/kk, sähkö mittauksen mukaan
Lämmitys: Sisältyy vuokraan
Muut ehdot: Minimisopimuskausi 12kk, vakuus 3kk vuokraa vastaava summa ja luottotietojen on oltava kunnossa
Tilaan kuljetaan samasta ulko-ovesta viereisen liiketilan kanssa. Varsinaisen liikehuoneen lisäksi tilassa on ikkunallinen takahuone, pieni keittiö sekä wc. Kadunpuoleisessa ulko-ovessa on ikkuna, mutta omaa, isompaa näyteikkunaa huoneistossa ei ole.
Vesimaksu on 25€/kk. Sähkö veloitetaan mittauksen mukaan.
Kaikki Porvoon keskustan palvelut lounasmahdollisuuksineen ovat aivan nurkan takana.
Tila on erinomaisella paikalla pääväylän varrella!
Kohdetiedot
Sijainti
Katuosoite: Mannerheiminkatu 13, 06100 Porvoo
Kaupunginosa: Keskusta
Ympäristö: Kaupungin keskusta, liikerakennuksia, asuinrakennuksia, kaikki keskustan palvelut vieressä
Rakennus/huoneisto
Pinta-alat: Noin 50 m²
Kiinteistötyyppi: Kerrostalo
Huoneistoselitelmä: Liikehuoneisto
Kerros: 1
Kunto, varusteet ja palvelut: Siisti, hyväkuntoinen tila, takahuone, pikkukeittiö, wc
Rakennusvuosi: 1941
Lämmitys: Kaukolämpö
Vapautuu: Heti
Vuokrahinta ja kulut
Kuukausivuokra: 699 €/kk + alv
Vesi- ja sähkömaksu: Vesimaksu 25€/kk, sähkö mittauksen mukaan
Lämmitys: Sisältyy vuokraan
Muut ehdot: Minimisopimuskausi 12kk, vakuus 3kk vuokraa vastaava summa ja luottotietojen on oltava kunnossa
Vapautuu
Heti
Rakennusvuosi
1941
Kerros
1 / 5
Katutasossa
Näkyvällä paikalla
Ota yhteyttä
Tilat.fi
KTM, LKV Antti Soivio
Näytä puhelinnumero
0400 446 553
OTM, LKV Riikka Tuominen
Näytä puhelinnumero
0400 551 790
KTM, LKV Maria-Sofia Puhakka
Näytä puhelinnumero
0400-150330
MBA, LKV Susanne Wallenius
Näytä puhelinnumero
0400-128877
LKV Tilat.fi Oy on toimitilojen välitykseen erikoistunut yritys.
http://www.tilat.fiPyydä lisätietoa
