Vuokrataan toimistotilat - Helsinki
Elimäenkatu 26, Vallila, 00520 Helsinki #10709778
Modernisoitua toimistotilaa hyvällä paikalla Vallilassa.
Osoite
Elimäenkatu 26, 00520 Helsinki
Tilatyyppi
Toimistotilaa
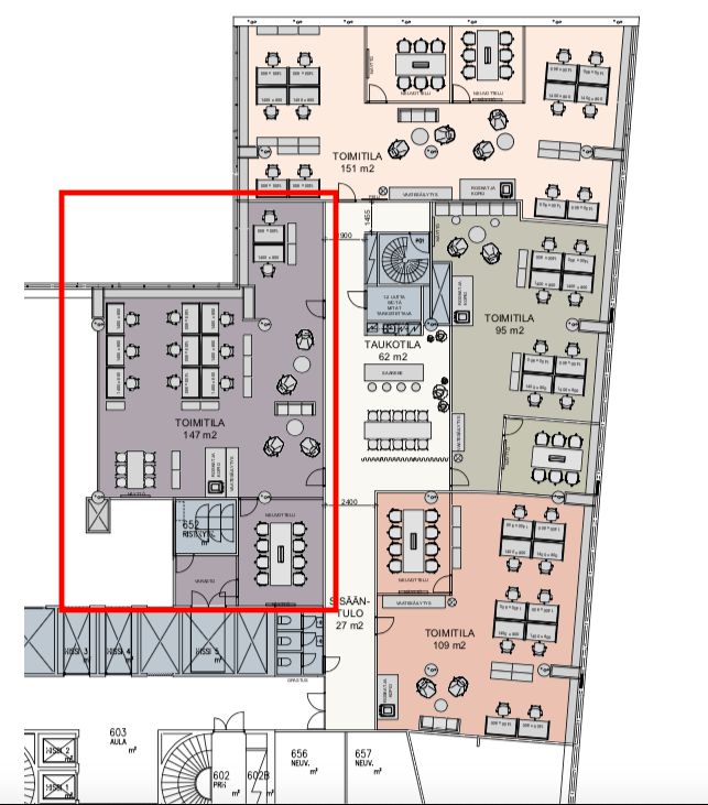
502 m2
Kiinteistö
Kiinteistön käyttäjille on tarjolla kattavat palvelut sekä erinomainen sijainti hyvien liikenneyhteyksien varrella, lähellä Pasilan asemaa.
Ilmoituksen kuvat ovat yleiskuvia kiinteistön eri tiloista.
Vallilassa sijaitseva, vuonna 1969 valmistunut teollisuuskiinteistö, joka on saneerattu toimistokäyttöön vuonna 1998. Yhteiset aula- ja neuvottelutilat on kunnostettu keväällä 2013.
Kiinteistössä on toimistotilaa 2. - 7. kerroksessa yhteensä noin 10 000 m2. Kerroskoko on noin 1 757 m2. Jäähdytetyt toimistotilat ovat muunneltavissa käyttäjän tarpeiden mukaan.
Kiinteistössä vuokralaisia palvelevat aulavastaanotto, lounasravintola, kuntosali sekä yhteiset neuvottelutilat. Kellarikerroksessa on vuokrattavissa varastotilaa.
Kiinteistössä on kaksi henkilöhissiä sekä kolme tavarahissiä, joilla on yhteys lastauslaiturilta kerroksiin. Tavarahissien kantavuus on 1000 kg ja 2000 kg.
Kellarikerroksissa on runsaasti vuokrattavia autopaikkoja ja sisäpihalla asiakaspysäköinti. Lisää kadunvarsipysäköintitilaa Kuortaneenkadulla.
Pyöräilijöitä varten talossa on suihkutilat ja sisäpihalta löytyy pyöräparkki.
Ilmoituksen kuvat ovat yleiskuvia kiinteistön eri tiloista.
Vallilassa sijaitseva, vuonna 1969 valmistunut teollisuuskiinteistö, joka on saneerattu toimistokäyttöön vuonna 1998. Yhteiset aula- ja neuvottelutilat on kunnostettu keväällä 2013.
Kiinteistössä on toimistotilaa 2. - 7. kerroksessa yhteensä noin 10 000 m2. Kerroskoko on noin 1 757 m2. Jäähdytetyt toimistotilat ovat muunneltavissa käyttäjän tarpeiden mukaan.
Kiinteistössä vuokralaisia palvelevat aulavastaanotto, lounasravintola, kuntosali sekä yhteiset neuvottelutilat. Kellarikerroksessa on vuokrattavissa varastotilaa.
Kiinteistössä on kaksi henkilöhissiä sekä kolme tavarahissiä, joilla on yhteys lastauslaiturilta kerroksiin. Tavarahissien kantavuus on 1000 kg ja 2000 kg.
Kellarikerroksissa on runsaasti vuokrattavia autopaikkoja ja sisäpihalla asiakaspysäköinti. Lisää kadunvarsipysäköintitilaa Kuortaneenkadulla.
Pyöräilijöitä varten talossa on suihkutilat ja sisäpihalta löytyy pyöräparkki.
Pysäköinti
Autopaikkoja vuokrattavana talon omasta lämpimästä parkkihallista.
Lisäpaikkoja vuokrattavissa viereisestä Q-Parkista.
Lisäpaikkoja vuokrattavissa viereisestä Q-Parkista.
Kulkuyhteydet
Elimäenkadulle on helppo tulla myös julkisilla liikennevälineillä (bussit 22, 51, 59 ja 70T). Teollisuuskatua kulkee uusi raitiovaunulinja 9, lisäksi Mäkelänkadulla kulkevat raitiovaunut 7A ja 7B sekä useita lähi- ja seutuliikenteen busseja. Sturenkadulla kulkevat raitiovaunut 1 ja 1A. Lähijunat pysähtyvät Pasilassa.
Metroasema 1,3 km, Raitiovaunupysäkki 200 m, Bussipysäkki 200 m, Juna-asema 700 m, Lentoasema 13,4 km
Metroasema 1,3 km, Raitiovaunupysäkki 200 m, Bussipysäkki 200 m, Juna-asema 700 m, Lentoasema 13,4 km
Vapautuu
Heti
Rakennusvuosi
1969
Saneerausvuosi
2013
Kerros
6 / 7
Energiatehokkuusluokka
Ei lain edellyttämää energiatodistusta
Näkyvällä paikalla
Hissi
Ota yhteyttä
ScanReal Oy LKV
Opus Business Park
Hitsaajankatu 24
00810 Helsinki
info@scanreal.fi
Puh:
Näytä puhelinnumero
020 730 8830
Sopivat toimitilat yhdellä otolla!
Kartoitamme toimitilatarpeesi ja etsimme yrityksellesi parhaiten sopivat vapaat toimitilat. Koska vuokranantajat maksavat palvelumme, on tämä yrityksellesi veloituksetonta.
OTA YHTEYTTÄ - SOVI NÄYTTÖ!
Kaikki kohteemme eivät ole netissä, kerro tilatarpeesi niin kartoitamme vaihtoehdot.
Palvelumme on tilanhakijalle ilmainen
Pyydä lisätietoa
