Vuokrataan toimistotilat - Helsinki
Kumpulantie 15 /Elimäenkatu 30, Vallila, 00520 Helsinki #10709460
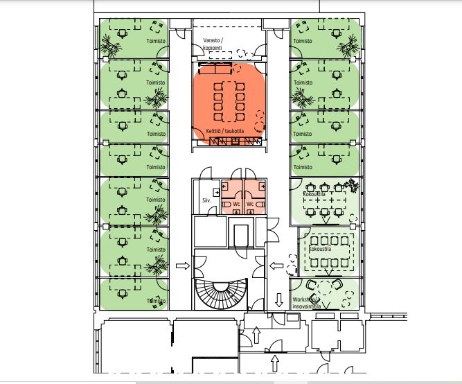
Vuokrattavana valoisaa, muuntojoustavaa ja modernia toimistotilaa.
Osoite
Kumpulantie 15 /Elimäenkatu 30, 00520 Helsinki
Tilatyyppi
Toimistotilaa
346 m2
Kiinteistö
Vuokrattavana valoisaa, muuntojoustavaa ja modernia toimistotilaa.
Sijainti
Vallila, Helsinki
Pysäköinti
Autopaikkoja vuokrattavana talon omasta lämpimästä parkkihallista.
Palvelut
-Aulapalvelu
-Henkilöstöravintola
-Vuokrattavia neuvottelutiloja
-Kuntosali
-Henkilöstöravintola
-Vuokrattavia neuvottelutiloja
-Kuntosali
Kulkuyhteydet
-Metroasema 1,3 km.
-Raitiovaunupysäkki 200 m.
-Bussipysäkki 200 m.
-Raitiovaunupysäkki 200 m.
-Bussipysäkki 200 m.
Vapautuu
Heti
Kerros
4
Energiatehokkuusluokka
Ei lain edellyttämää energiatodistusta
Näkyvällä paikalla
Hissi
Ota yhteyttä
REALIUM OY LKV
Tammasaarenkatu 1, 00180 Helsinki
Vaihde:
Näytä puhelinnumero
010 326 346
Tuomo Mäkelä
tuomo.makela@realium.fi
p.
Näytä puhelinnumero
044 050 1158
Joel Keto
joel.keto@realium.fi
p.
Näytä puhelinnumero
045 317 0330
KAIKKI TILAVAIHTOEHDOT KERRALLA!
SOITA - MEILAA JA TILAA NÄYTTÖ!
Ilmainen palvelu tilanhakijoille.
Kartoitamme parhaat tilavaihtoehdot.
Kaikki kohteet eivät ole netissä.
Pyydä lisätietoa
