Vuokrataan liiketilat - Helsinki
Fredrikinkatu 48, Kamppi, 00100 Helsinki #10708486
Vuokrataan katutason liiketila Fredrikinkadun ja Eteläisen Rautatiekadun kulmassa. Tila soveltuu esimerkiksi myymäläksi tai asiakaspalvelupisteeksi. Ota yhteyttä ja sovi esittely, vuokrauspalvelumme on tilanhakijoille maksuton.
Osoite
Fredrikinkatu 48, 00100 Helsinki
Tilatyyppi
Liiketilaa
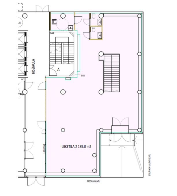
189 m2
Pohjapiirros
Sijainti
Kamppi
Pysäköinti
Oma autohalli ja pyöräparkki sekä suihkutilat pyöräilijöille.
Palvelut
Kampin kauppakeskuksen vieressä.
Kulkuyhteydet
Metron, keskusbussiaseman ja useiden raitiovaunulinjojen vieressä sekä juna-asema kävelymatkan päässä.
Vapautuu
Heti
Rakennusvuosi
1962
Kerros
1
Energiatehokkuusluokka
F2007
Katutasossa
Näkyvällä paikalla
Ota yhteyttä
Senaatin Notariaatti Oy LKV
Lämmittäjänkatu 4 A
FIN-00880 Helsinki
Tel:
Näytä puhelinnumero
+358 9 7745 100
Pyydä lisätietoa
