Vuokrataan toimistotilat, liiketilat, työtilat, muut tilat - Oulu
Albertinkatu 13, 90100 Oulu #10707723
Vuokrataan aivan ydinkeskustan tuntumasta siistiä liiketilaa joka soveltuu erinomaisesti myös toimistokäyttöön.
Ensimmäiselle sopimusvuodelle huomattava etu vuokraan!
Osoite
Albertinkatu 13, 90100 Oulu
Tilatyyppi
Toimistotilaa
208 m2
Liiketilaa
208 m2
Työtilaa
208 m2
Muuta tilaa
208 m2
Yhteensä
208 m2
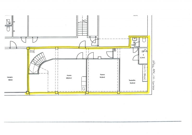
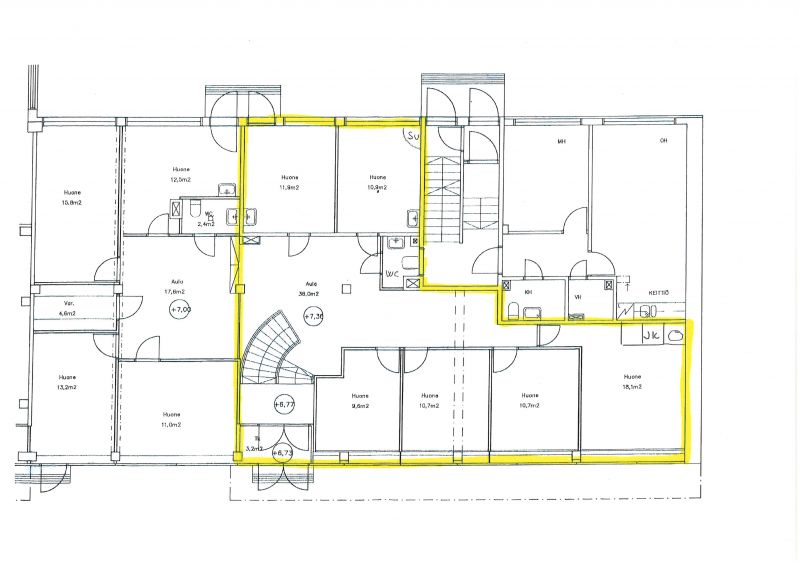
Tilajako
Jaettavissa
Katutaso 118m² + alakerta 90m²
Pohjapiirros
Vuokra
Vuokra ensimmäiselle sopimusvuodelle 1.990,00€/kk, ei alvia, lisäksi käyttösähkö ja vesi.
Vuokraan sisältyy lämpö
Sijainti
Ydinkeskustan tuntumassa
Palvelut
Ydinkeskustan, ODL ja Terveystalo vastapäätä.
Muuta
Koneellinen IV tulo ja poisto.
Vapautuu
Heti
Kerros
1 / 2
Energiatehokkuusluokka
E2018
E-luku
169 kWhE/m²/vuosi
Katutasossa
Näkyvällä paikalla
Jaettavissa
Ota yhteyttä
Pohjois-Suomen Toimitilat Oy
Sepänkatu 20, 90100 Oulu
Pekka Valkola
Näytä puhelinnumero
044 311 0555
Pyydä lisätietoa
