Vuokrataan toimistotilat - Helsinki
Kutomotie 16-18, Pitäjänmäki, 00380 Helsinki #10707458
Siistiä toimistotilaa Business Park -ympäristössä
Osoite
Kutomotie 16-18, 00380 Helsinki
Tilatyyppi
Toimistotilaa
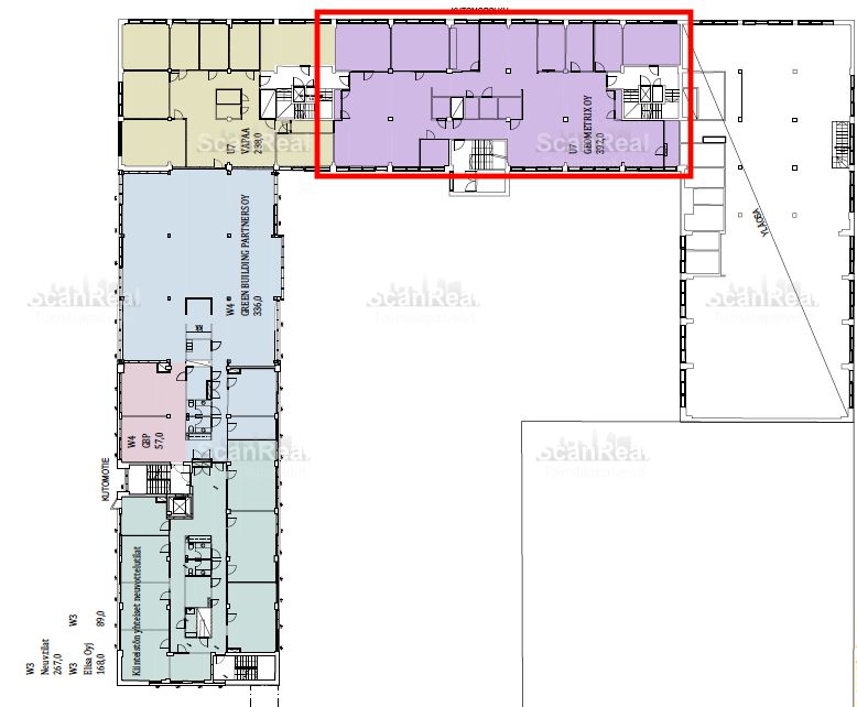
393 m2
Pohjapiirros
Kiinteistö
Siistiä toimistotilaa Business Park -ympäristössä.
Kiinteistössä on hyvät oheispalvelut ja vuokralaisten käytössä ilmainen, modernisoitu kuntosali.
- Aulapalvelu
- Henkilöstöravintola
- Vuokrattavia neuvottelutiloja
- Saunaosasto
- Kuntosali
Kiinteistössä on hyvät oheispalvelut ja vuokralaisten käytössä ilmainen, modernisoitu kuntosali.
- Aulapalvelu
- Henkilöstöravintola
- Vuokrattavia neuvottelutiloja
- Saunaosasto
- Kuntosali
Pysäköinti
Vuokralaisille ilmaiset parkkipaikat talon omasta hallista suhteessa vuokrattuun pinta-alaan.
Kulkuyhteydet
Bussipysäkki 200 m, Juna-asema 900 m, Lentoasema 18,4 km
Vapautuu
Heti
Kerros
4
Energiatehokkuusluokka
Ei lain edellyttämää energiatodistusta
Hissi
Ota yhteyttä
ScanReal Oy LKV
Opus Business Park
Hitsaajankatu 24
00810 Helsinki
info@scanreal.fi
Puh:
Näytä puhelinnumero
020 730 8830
Sopivat toimitilat yhdellä otolla!
Kartoitamme toimitilatarpeesi ja etsimme yrityksellesi parhaiten sopivat vapaat toimitilat. Koska vuokranantajat maksavat palvelumme, on tämä yrityksellesi veloituksetonta.
OTA YHTEYTTÄ - SOVI NÄYTTÖ!
Kaikki kohteemme eivät ole netissä, kerro tilatarpeesi niin kartoitamme vaihtoehdot.
Palvelumme on tilanhakijalle ilmainen
Pyydä lisätietoa
