Vuokrataan toimistotilat - Helsinki
Itälahdenkatu 23, Lauttasaari, 00210 Helsinki #10704769
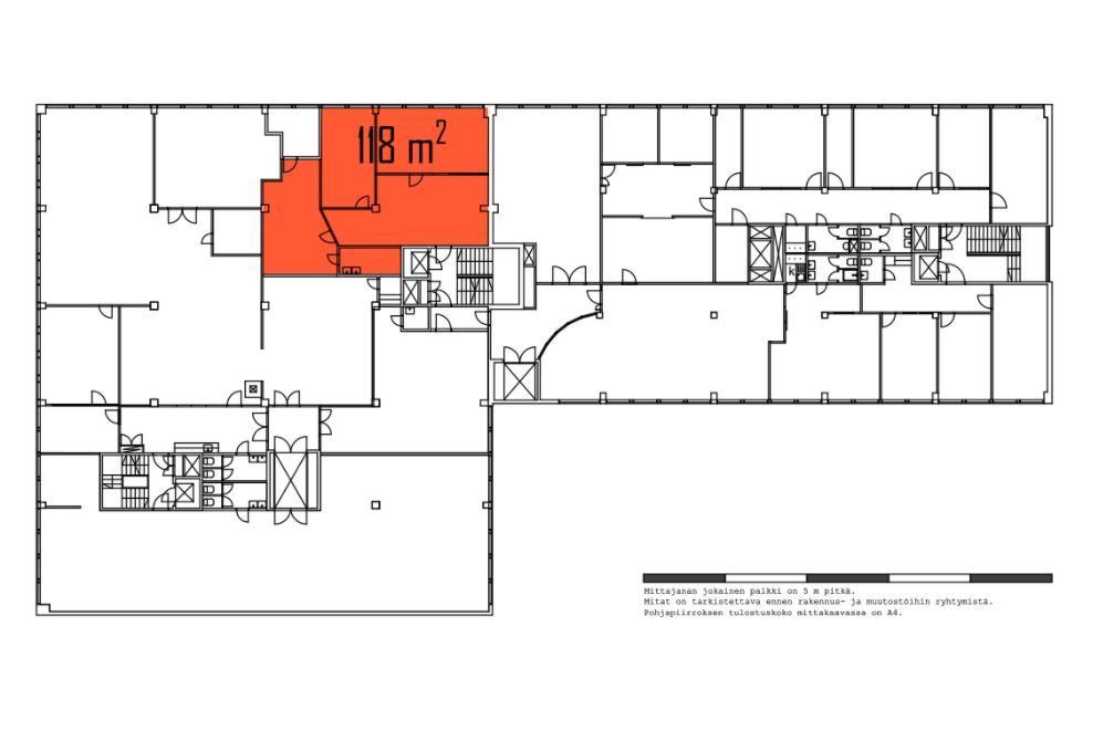
Kolmannen kerroksen monipuolinen toimistotila, jossa lisäksi pieni varastotila. Iso aula ja kaksi erillistä toimistohuonetta. Omat wc:t.
Itälahdenkatu 23:sta vuokrataan toimistotiloja työhuoneista mahdollisiin esittelytiloihin (showroom) mutta myös varastotilaa. Kolmannessa kerroksessa on kuuden toimistohuoneen toimistohotelli. Rakennuksessa on viisi kerrosta ja kellarikerros. Henkilöhissit kulkevat kaikkiin kerroksiin, tavarahissit kellarista 4. kerrokseen asti.
Helsingin Lauttasaaressa sijaitseva toimistorakennus on valmistunut 1970-luvulla. Sen kokonaispinta-ala on 7000 m2. Kohteessa on omia parkkipaikkoja ja lastauslaituri. Toimitilojen lähistöllä on useita lounasravintoloita.
Lisätietoja numerosta 020 7290 710. Lisää kohteita osoitteessa www.premises.fi.
Kohteella ei ole lain edellyttämää energiatodistusta tai energialuokka ei tiedossa.Kerros: 3
CRE PREMISES
Puh. Näytä puhelinnumero 020 7290 710
Vantaankoskentie 14
01670 VANTAA
