Videoesittely
Vuokrataan toimistotilat - Jyväskylä
Kauppakatu 41, 40100 Jyväskylä #10703507
Vanha Tiilitalo / Jäähdytys / Keskustan palvelut / Heti vapaa
Osoite
Kauppakatu 41, 40100 Jyväskylä
Tilatyyppi
Toimistotilaa
112 m2
Vuokra
1490
Vuokraan sisältyy lämpö
Kiinteistö
Toimisto vuokrattavana – Jyväskylä, Kauppakatu 41, 4. krs
Heti vapaa, ylimmän kerroksen valoisa ja moderni toimistotila Jyväskylän ydinkeskustasta!
📍 Osoite: Kauppakatu 41, 4. kerros
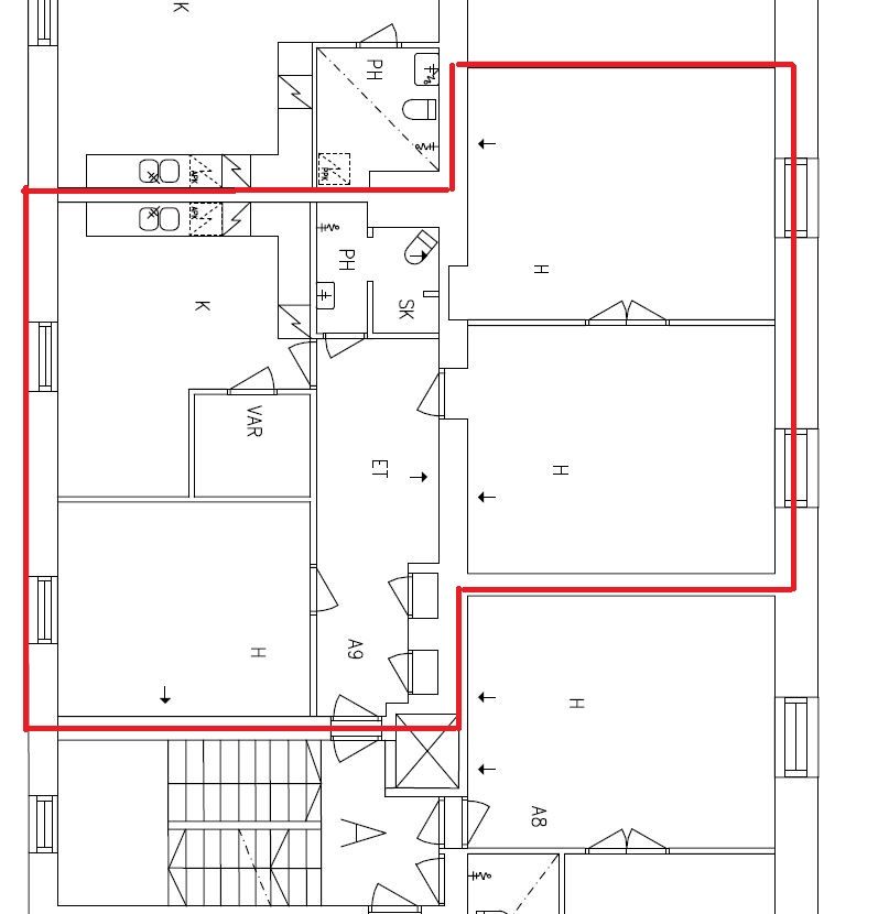
📐 Pinta-ala: 112 m²
❄️ Jäähdytys: Huonekohtaisesti säädettävä
🏙️ Kerros: Ylin kerros
📅 Vapautuminen: Heti
Tämä edustava ja hyväkuntoinen toimistotila sijaitsee keskeisellä paikalla Jyväskylän keskustassa, hyvien kulkuyhteyksien varrella. Tilassa on tehokas pohjaratkaisu, luonnonvaloa runsaasti sekä koneellinen jäähdytys viihtyvyyttä lisäämässä.
Soveltuu erinomaisesti esimerkiksi asiantuntija- tai hallintotyöhön, pienelle tai keskisuurelle tiimille.
Kysy lisää tai sovi esittely!
Heti vapaa, ylimmän kerroksen valoisa ja moderni toimistotila Jyväskylän ydinkeskustasta!
📍 Osoite: Kauppakatu 41, 4. kerros
📐 Pinta-ala: 112 m²
❄️ Jäähdytys: Huonekohtaisesti säädettävä
🏙️ Kerros: Ylin kerros
📅 Vapautuminen: Heti
Tämä edustava ja hyväkuntoinen toimistotila sijaitsee keskeisellä paikalla Jyväskylän keskustassa, hyvien kulkuyhteyksien varrella. Tilassa on tehokas pohjaratkaisu, luonnonvaloa runsaasti sekä koneellinen jäähdytys viihtyvyyttä lisäämässä.
Soveltuu erinomaisesti esimerkiksi asiantuntija- tai hallintotyöhön, pienelle tai keskisuurelle tiimille.
Kysy lisää tai sovi esittely!
Sijainti
Kauppakatu
Vapautuu
Heti
Kerros
4 / 4
Huoneiden lukumäärä
3
Hissi
Ota yhteyttä
Business Network Oy
Kauppakatu 41 A 8
40100 JYVÄSKYLÄ
p.
Näytä puhelinnumero
044 3666 937
Juuso
Pyydä lisätietoa
