Vuokrataan toimistotilat - Espoo
Friisinmäentie 5, Säteri, 02600 Espoo #10703478
Toimistotilaa Turunväylän varrella.
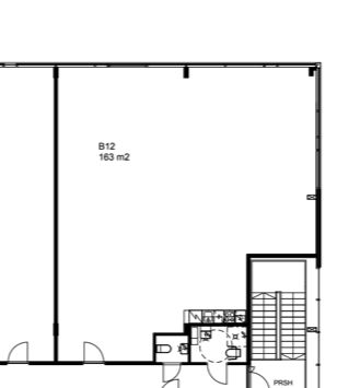
Tämä 163 m² toimistotila sijaitsee kiinteistön 2. kerroksessa. Toimisto on avonainen, ja siihen kuuluu oma keittiöpiste. Wc-tilat ovat käytävällä tilan vieressä.
Kiinteistössä on yhteensä 3728m2 monitoimitilaa. Kiinteistön tilat on suunniteltu joustaviksi niin, että yksiköitä on helppo muunnella, jakaa ja yhdistellä. Niiden pohja- ja LVI-ratkaisut mahdollistavat muokattavuuden eri toimialojen käyttäjien tarpeisiin, esimerkiksi tilat voivat toimia tuotanto-, varasto- ja näyttelytiloina.
Friisinmäentie 5 on monitoimitilakiinteistö, joka valmistui lokakuussa 2020. Se sijaitsee näkyvällä paikalla Turunväylän varrella, uuden Laajalahden liittymän läheisyydessä.
Kysy lisää numerosta 044 723 4700 tai info@bref.fi. Palvelumme on tilanhakijoille ilmainen.
Bureau Real Estate Finland Oy
Lars Sonckin kaari 16, 02600 Espoo
Näytä puhelinnumero
0447234700
Bureau Real Estate Finland Oy
https://www.bref.fi