Vuokrataan toimistotilat - Helsinki
Tallberginkatu 2, Ruoholahti, 00180 Helsinki #10702851
Toimistotilaa loistavalla sijainnilla Helsingin Ruoholahdessa.
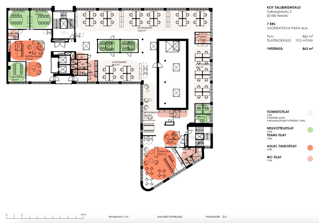
Tämä 862m2 toimistotila sijaitsee kiinteistön ylimmässä, 7. kerroksessa. Toimistosta on hienot näkymät eri ilmansuuntiin ja kattoikkunat tuovat tilaan valoa. Toimisto räätälöidään vuokralaisen tarpeiden mukaan. Pohjakuvat ovat esimerkkejä mahdollisista tilaratkaisuista.
Tallberginkatu 2 eli Tallbergintalo sijaitsee Ruoholahdessa Tallberginkadun ja Porkkalankadun risteyksessä. Tallbergintalo on yhdistetty Itämerentalon kanssa. Rakennuksilla on yhteiset neuvottelutilat, lounasravintola, lastauslaituri sekä sisäyhteys talojen välillä. Kiinteistö sijaitsee erinomaisten liikenneyhteyksien varrella. Pysäköintipaikkoja voi vuokrata Ruoholahden pysäköintihallista.
Kysy lisää numerosta 044 723 4700 tai info@bref.fi. Palvelumme on tilanhakijoille ilmainen.
Hissi
Bureau Real Estate Finland Oy
Lars Sonckin kaari 16, 02600 Espoo
Näytä puhelinnumero
0447234700
Bureau Real Estate Finland Oy
https://www.bref.fi