Vuokrataan toimistotilat - Espoo
Karaportti 5, Karamalmi, 02610 Espoo #10702547
Modernia toimistotilaa Espoon Karaportissa.
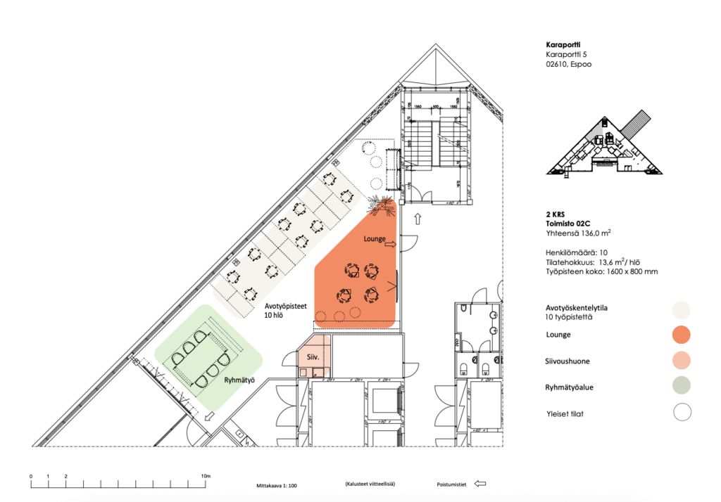
Kiinteistön 2. kerroksessa on vuokrattavana 136m2 toimisto, joka remontoidaan tulevan vuokralaisen tarpeiden mukaan. Kuvat ovat yleiskuvia ja havainnekuvia kiinteistön tiloista.
Karaportti 5 on toimistokiinteistö high tech-alueella, sen toimitilat on varusteltu nykyaikaisella tekniikalla. Tilat ovat myös helposti muokattavissa vuokralaisen tarpeiden mukaan. Talossa on oma lastauslaituri ja tavarahissiyhteys kerroksiin.
Kysy lisää numerosta 044 723 4700 tai info@bref.fi. Palvelumme on tilanhakijoille ilmainen.
Bureau Real Estate Finland Oy
Lars Sonckin kaari 16, 02600 Espoo
Näytä puhelinnumero
0447234700
Bureau Real Estate Finland Oy
https://www.bref.fi