Vuokrataan toimistotilat - Helsinki
Annankatu 25, Keskusta, 00100 Helsinki #10702398
Hyväkuntoista pientoimistotilaa keskeltä kaupunkia.
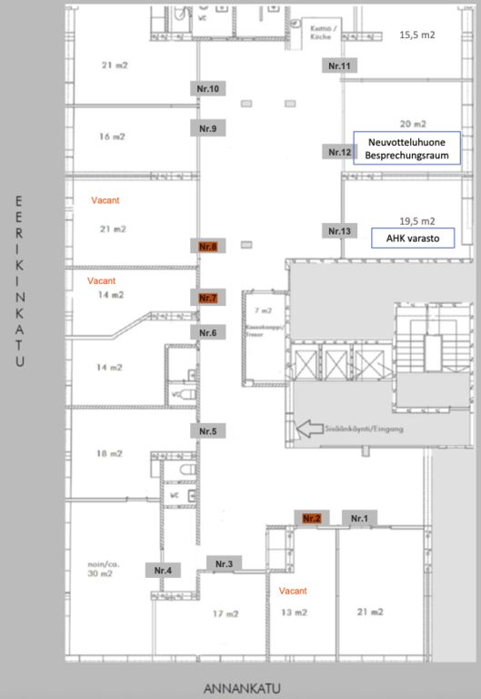
Vuokrattavana erikokoisia toimistohuoneita Annankadulta Hopeatalosta. Huoneiden vuokraan sisältyy neuvottelutilan käyttöoikeus, toimistojen siivous ja yhteisten tilojen käyttö. Pohjakuvassa tämä 14 m² toimistohuone on numero 7.
Hopeatalo eli Annankatu 25 sijaitsee hyvällä paikalla Annankadun ja Eerikinkadun kulmauksessa. Kiinteistö on helposti saavutettavissa julkisella liikenteellä. Kaikki keskustan ja Kampin alueen palvelut ympärillä.
Kysy lisää numerosta 044 723 4700 tai info@bref.fi. Palvelumme on tilanhakijoille ilmainen.
Hissi
Bureau Real Estate Finland Oy
Lars Sonckin kaari 16, 02600 Espoo
Näytä puhelinnumero
0447234700
Bureau Real Estate Finland Oy
https://www.bref.fi