Vuokrataan liiketilat - Seinäjoki
Päivölänkatu 2, Pohja, 60120 Seinäjoki #10702327
Siistiä ja valoisaa liiketilaa Seinäjoella, vuonna 2008 valmistuneessa Retail Parkissa.
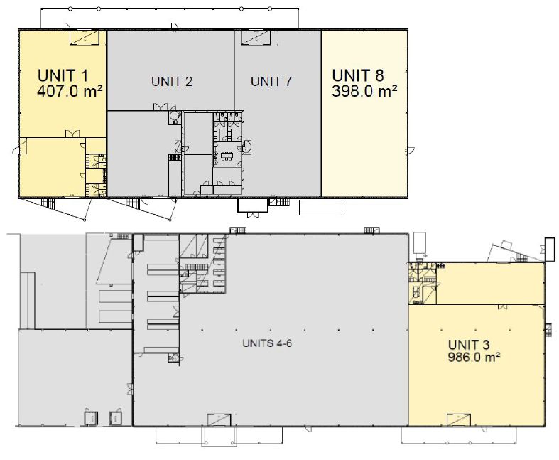
Kyseinen tila on kooltaan 401m2 ja sijaitsee kiinteistön katutasossa. Pohjakuvassa tila on nimellä UNIT 8. Kuvat ovat yleiskuvia kiinteistön tiloista.
Seinäjoki Retail on liikekiinteistö-kokonaisuus, jolla on hyvä sijainti Seinäjoen keskustan tuntumassa, lähellä valtaväyliä. Kiinteistö on helposti saavutettavissa niin omalla autolla kuin julkisella liikenteellä. Tavaroiden lastaus onnistuu hyvien lastausmahdollisuuksien ansiosta. Piha-alueella on hyvin paikoitustiloja.
Kysy lisää numerosta 044 723 4700 tai info@bref.fi. Palvelumme on tilanhakijoille ilmainen.
Bureau Real Estate Finland Oy
Lars Sonckin kaari 16, 02600 Espoo
Näytä puhelinnumero
0447234700
Bureau Real Estate Finland Oy
https://www.bref.fi