














Vuokrataan toimistotilat - Helsinki
Arabiankatu 12, Arabia, 00560 Helsinki #10702190
Siistiä ja modernia toimistotilaa Helsingin Arabiassa.
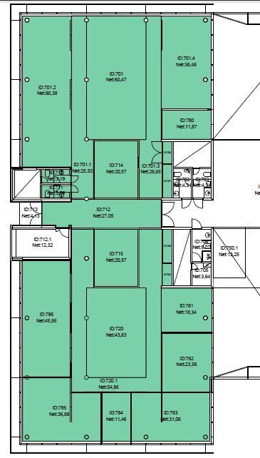
Tämä 289 m² tila sijaitsee kiinteistön 6. kerroksessa ja sieltä on upea merinäköala. Toimisto koostuu huoneista ja avotilasta sekä omista keittiö- ja wc-tiloista. Lisäksi tilan yhteydessä on pieni parveke. Kuvat ovat ylemmän kerroksen samankokoisesta toimistosta.
Business Park Arabianportaali sijaitsee hyvin kulkuyhteyksien varrella, lyhyen matkan päässä Helsingin keskustasta. Arabia tunnetaan parhaiten muotoilun ja designin keskittymänä. Aluetta ja sen kiinteistöjä tullaan kehittämään entisestään lähivuosien aikana.
Arabianportaalin toimitilat on rakennettu niin, että ne ovat helposti muokattavissa vuokralaisen tarpeiden mukaan joko avotilaksi, huonetoimistoksi tai monitilatoimistoksi. Kiinteistöstä löytyvät myös monipuoliset palvelut kuten ylimmän kerroksen uusi saunaosasto kattoterasseineen, ravintola-, kokous- ja toimistopalvelut sekä pysäköintihalli.
Kysy lisää numerosta 044 723 4700 tai info@bref.fi. Palvelumme on tilanhakijoille ilmainen.
Hissi
Bureau Real Estate Finland Oy
Lars Sonckin kaari 16, 02600 Espoo
Näytä puhelinnumero
0447234700
Bureau Real Estate Finland Oy
https://www.bref.fi
