Vuokrataan liiketilat - Lahti
Aleksanterinkatu 25, Keskusta Lahti, 15140 Lahti #10702115
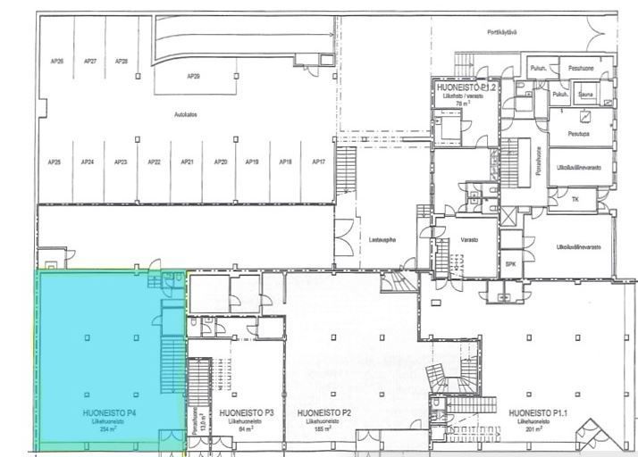
Katutason liiketilaa hyvällä paikalla Lahden keskustassa.
Liike sijaitsee vastapäätä Kauppakeskus Trioa. Tilassa on isot näyteikkunat ja oma wc. Toimitilan alakerrassa on varastointiin soveltuvaa tilaa. Liiketila ei sovellu ravintola-, kahvila- tai parturikampaamotoimintaan. This premise is not suitable for a restaurant, cafeteria or a barber shop.
Aleksanterinkatu 25 eli Aleksintorni sijaitsee vilkkaan kävelykadun varrella Lahden keskustassa. Rautatieasema sijaitsee kävelymatkan päässä ja autopaikkoja voi vuokrata alueen pysäköintilaitoksista.
Kysy lisää numerosta 044 723 4700 tai info@bref.fi. Palvelumme on tilanhakijoille ilmainen.
Bureau Real Estate Finland Oy
Lars Sonckin kaari 16, 02600 Espoo
Näytä puhelinnumero
0447234700
Bureau Real Estate Finland Oy
https://www.bref.fi