Vuokrataan toimistotilat - Helsinki
Aleksanterinkatu 9 B, Keskusta, 00100 Helsinki #10701795
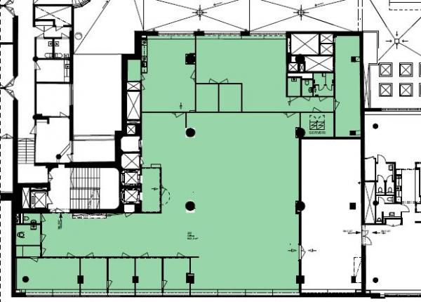
Vapautuva edustava toimistotila, joka liitettävissä, juuri saneerattuun 488m2 toimistokokonaisuuteen.
Osoite
Aleksanterinkatu 9 B, 00100 Helsinki
Tilatyyppi
Toimistotilaa
642 m2
Kiinteistö
Kauppakeskus Kluuvin Aleksanterinkadun puolella sijaitseva toimistokokonaisuus, valoisa, läitalon tila, ikkunat Aleksanterinkadulle, ja sisäpihalle. Tila avotilaa, ja erikokoisia huoneita. Sisäänkäynti Aleksanterinkadun ja Kluuvikadun nurkalta, tai suoraan Kluuvin Kauppakeskuksesta hissillä suoraan tilaan. Tilaan on liitettävissä viereinen edustava, juuri saneerattu 488m2 toimistokokonaisuus.
Pysäköinti
Parkkihalli kiinteistön alapuolella, josta hissillä suoraan Kluuvin keskukseen.
Palvelut
Kauppakeskus Kluuvi ja kaikki muut keskustan palvelut
Kulkuyhteydet
Kaikki liikennevälineet aivan vieressä, raitiovaunu pysähtyy kiinteistö eteen, bussit ja juna kävelyetäisyydellä, ja metro vieressä
Vapautuu
24.02.2022
Kerros
4
Hissi
Ota yhteyttä
TopReal
Hietalahdenranta 17 B, 00180 Helsinki
Näytä puhelinnumero
09 6227 7852
Soita ja kysy lisää, tai tutustu www-sivuihimme!
http://www.topreal.fiPyydä lisätietoa
