Vuokrataan toimistotilat - Helsinki
Panimokatu 2A, Sörnäinen, 00580 Helsinki #10701090
Vuokrattavissa nykyaikaista, modernia, täysin remontoitua toimistotilaa, joka on pääosin avotilaa.
Osoite
Panimokatu 2A, 00580 Helsinki
Tilatyyppi
Toimistotilaa
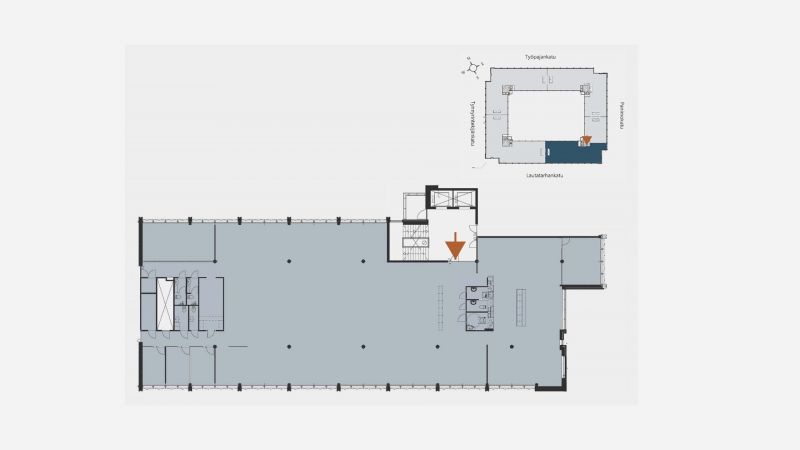
786 m2
Pohjapiirros
Kiinteistö
Vuokrattavissa nykyaikaista, modernia, täysin remontoitua toimistotilaa, joka on pääosin avotilaa. Tilassa on hieno aula ja keittiö, toimivat neuvotteluhuoneet.
Lisäksi kellarikerroksesta vuokrattavissa pienvarastotilaa.
Lisäksi kellarikerroksesta vuokrattavissa pienvarastotilaa.
Sijainti
Trooli, Kalasatama, Helsinki
Pysäköinti
Korttelin kellaritasossa sijaitsee tilava pysäköintihalli.
Palvelut
-Lounasravintola
-Vuokrattavia neuvuttelutiloja
-Auditorio
-Vuokrattavia neuvuttelutiloja
-Auditorio
Kulkuyhteydet
-Metro
-Bussi
-Raitiovaunu
-Oma auto
-Bussi
-Raitiovaunu
-Oma auto
Vapautuu
Heti
Kerros
3
Energiatehokkuusluokka
Ei lain edellyttämää energiatodistusta
Näkyvällä paikalla
Hissi
Ota yhteyttä
REALIUM OY LKV
Tammasaarenkatu 1, 00180 Helsinki
Vaihde:
Näytä puhelinnumero
010 326 346
Tuomo Mäkelä
tuomo.makela@realium.fi
p.
Näytä puhelinnumero
044 050 1158
Joel Keto
joel.keto@realium.fi
p.
Näytä puhelinnumero
045 317 0330
KAIKKI TILAVAIHTOEHDOT KERRALLA!
SOITA - MEILAA JA TILAA NÄYTTÖ!
Ilmainen palvelu tilanhakijoille.
Kartoitamme parhaat tilavaihtoehdot.
Kaikki kohteet eivät ole netissä.
Pyydä lisätietoa
