Vuokrataan toimistotilat - Helsinki
Vuorikatu 20, Kluuvi, 00100 Helsinki #10700947
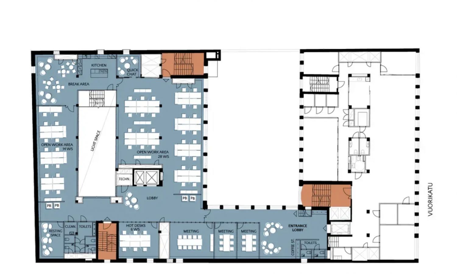
Vuokrattavana tulevan vuokralaisen tarpeiden mukaan remontoitava toimistotila. Tähän toimitilaan saa työpisteet n. 40-50 henkilölle ja lisäksi runsaasti ryhmätyö- ja neuvottelutiloja. Loistava sijainti lähellä keskustan palveluita. Yliopiston metroasema aivan vieressä. Tila on jaettavissa.
Vuorikatu 20 -arvokiinteistö on valmistunut vuonna 1939 Tampereen Rohdoksen toimisto- ja laboratoriotilaksi. Rakennus on saneerattu monipuoliseen toimistokäyttöön. Vuokralaisille on tarjolla erikokoisia, räätälöitäviä tiloja. Moderni talotekniikka mukautuu monenlaisiin tarpeisiin ja näyttävä atrium-sisäpiha tuo valoa. Käyttäjiä hemmottelee rakennuksen ravintola, erinomaiset liikenneyhteydet ja kaikki keskustan palvelut. Ohessa havainnollistavia kuvia tiloista.
Lisätiedot ja esittelyt 020 7290 710. Lisää kohteita www.premises.fi
Energialuokka D.Kerros: 3
CRE PREMISES
Puh. Näytä puhelinnumero 020 7290 710
Vantaankoskentie 14
01670 VANTAA
