Vuokrataan liiketilat - Lahti
Aleksanterinkatu 25, Keskusta, 15140 Lahti #10700395
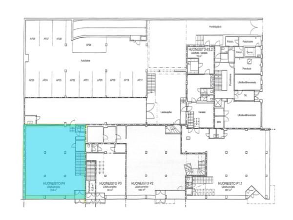
Katutason liiketilaa keskustasta Kauppakeskus Trioa vastapäätä
Osoite
Aleksanterinkatu 25, 15140 Lahti
Tilatyyppi
Liiketilaa
254 m2
Kiinteistö
Katutason liiketilaa keskustasta Kauppakeskus Trioa vastapäätä, Isot näyteikkunat.
Pysäköinti
Hyvät
Palvelut
Keskustan monipuoliset palvelut
Vapautuu
09.02.2023
Kerros
1
Hissi
Ota yhteyttä
TopReal
Hietalahdenranta 17 B, 00180 Helsinki
Näytä puhelinnumero
09 6227 7852
Soita ja kysy lisää, tai tutustu www-sivuihimme!
http://www.topreal.fiPyydä lisätietoa
