Vuokrataan liiketilat - Helsinki
Huopalahdentie 27, Munkkivuori, 00350 Helsinki #10700387
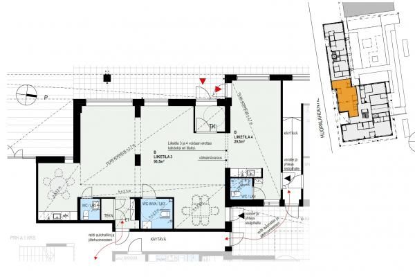
Kivijalan liiketila
Osoite
Huopalahdentie 27, 00350 Helsinki
Tilatyyppi
Liiketilaa
96,5 m2
Kiinteistö
Uuden asuintalon katutason liiketila 3. Yhdistettävissä viereisen liiketilan 29,5 m2 kanssa yhdeksi tilaksi, yht. n. 126m2 . Tilat eivät sovellu Ravintolatoimintaan.
Pysäköinti
Kiinteistön P-hallissa ja kadunvarsipaikoilla
Palvelut
Lähellä Munkkivuoren ostoskeskus
Kulkuyhteydet
Bussit ja raitiotie
Vapautuu
Kysy
Kerros
Katutaso
Ota yhteyttä
TopReal
Hietalahdenranta 17 B, 00180 Helsinki
Näytä puhelinnumero
09 6227 7852
Soita ja kysy lisää, tai tutustu www-sivuihimme!
http://www.topreal.fiPyydä lisätietoa
