Vuokrataan liiketilat - Espoo
Nelikkokuja 5, Matinkylä, 02230 Espoo #10700306
Osoite
Nelikkokuja 5, 02230 Espoo
Tilatyyppi
Liiketilaa
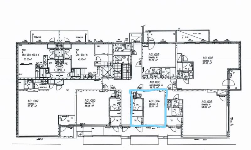
29 m2
Kiinteistö
Vuokrattavana katutason liiketilaa asuintalon kivijalasta Matinkylässä lähellä Iso Omenaa. Huoneistossa omat sosiaalitilat ja se soveltuu myös toimistokäyttöön. Liiketilaan on sisäänkäynti pihan puolelta.
Sijainti
Matinkylä, Espoo
Pysäköinti
Kiinteistön pihalla
Palvelut
Alueen palvelut
Kulkuyhteydet
-Metro
-Bussi
-Oma auto
-Bussi
-Oma auto
Vapautuu
Heti
Kerros
1
Energiatehokkuusluokka
Ei lain edellyttämää energiatodistusta
Katutasossa
Näkyvällä paikalla
Ota yhteyttä
REALIUM OY LKV
Tammasaarenkatu 1, 00180 Helsinki
Vaihde:
Näytä puhelinnumero
010 326 346
Tuomo Mäkelä
tuomo.makela@realium.fi
p.
Näytä puhelinnumero
044 050 1158
Joel Keto
joel.keto@realium.fi
p.
Näytä puhelinnumero
045 317 0330
KAIKKI TILAVAIHTOEHDOT KERRALLA!
SOITA - MEILAA JA TILAA NÄYTTÖ!
Ilmainen palvelu tilanhakijoille.
Kartoitamme parhaat tilavaihtoehdot.
Kaikki kohteet eivät ole netissä.
Pyydä lisätietoa
