Vuokrataan liiketilat - Savonlinna
Olavinkatu 43, 57100 Savonlinna #10699921
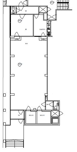
Vuokrattavana siisti katutason liiketila Savonlinnan keskustan läheisyydessä.
Lisätietoja 020 7290 710, lisää kohteita www.premises.fi
Kohteella ei ole lain edellyttämää energiatodistusta.Kerros: katutaso
Osoite
Olavinkatu 43, 57100 Savonlinna
Tilatyyppi
Liiketilaa
141 m2
Ota yhteyttä
CRE PREMISES
Puh. Näytä puhelinnumero 020 7290 710
Vantaankoskentie 14
01670 VANTAA
Pyydä lisätietoa
