Vuokrataan toimistotilat - Helsinki
Tallberginkatu 2, Ruoholahti, 00180 Helsinki #10699744
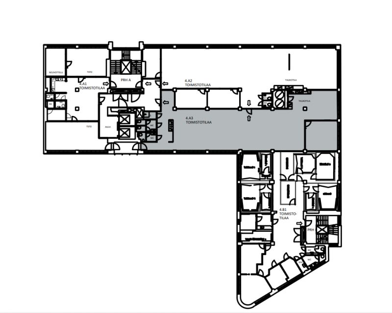
Vuokrattavana täysin remontoitua, valoisaa avotoimistotilaa meren äärellä.
Osoite
Tallberginkatu 2, 00180 Helsinki
Tilatyyppi
Toimistotilaa
236,5 m2
Kiinteistö
Vuokrattavana täysin remontoitua, valoisaa avotoimistotilaa meren äärellä. Tilassa on neuvotteluhuone, työhuoneet, omat vessat ja keittiö.
Sijainti
Ruoholahti, Helsinki
Pysäköinti
Lähistöllä maksullisia paikkoja, lisäksi kauppakeskuksen pysäköintitilat.
Palvelut
-Aulapalvelu
-Ravintoloita
-Neuvottelutiloja
-Ravintoloita
-Neuvottelutiloja
Kulkuyhteydet
-Metro
-Raitiovaunu
-Bussi
-Oma auto
-Raitiovaunu
-Bussi
-Oma auto
Vapautuu
Heti
Kerros
4
Energiatehokkuusluokka
Ei lain edellyttämää energiatodistusta
Näkyvällä paikalla
Hissi
Ota yhteyttä
REALIUM OY LKV
Tammasaarenkatu 1, 00180 Helsinki
Vaihde:
Näytä puhelinnumero
010 326 346
Tuomo Mäkelä
tuomo.makela@realium.fi
p.
Näytä puhelinnumero
044 050 1158
Joel Keto
joel.keto@realium.fi
p.
Näytä puhelinnumero
045 317 0330
KAIKKI TILAVAIHTOEHDOT KERRALLA!
SOITA - MEILAA JA TILAA NÄYTTÖ!
Ilmainen palvelu tilanhakijoille.
Kartoitamme parhaat tilavaihtoehdot.
Kaikki kohteet eivät ole netissä.
Pyydä lisätietoa
