Vuokrataan varastotilat - Espoo
Rajamaankuja 7 B, Juvanmalmi, 02970 Espoo #10699720
Uutta 2. kerroksen varastotilaa Juvanmalmilla
Osoite
Rajamaankuja 7 B, 02970 Espoo
Tilatyyppi
Varastotilaa
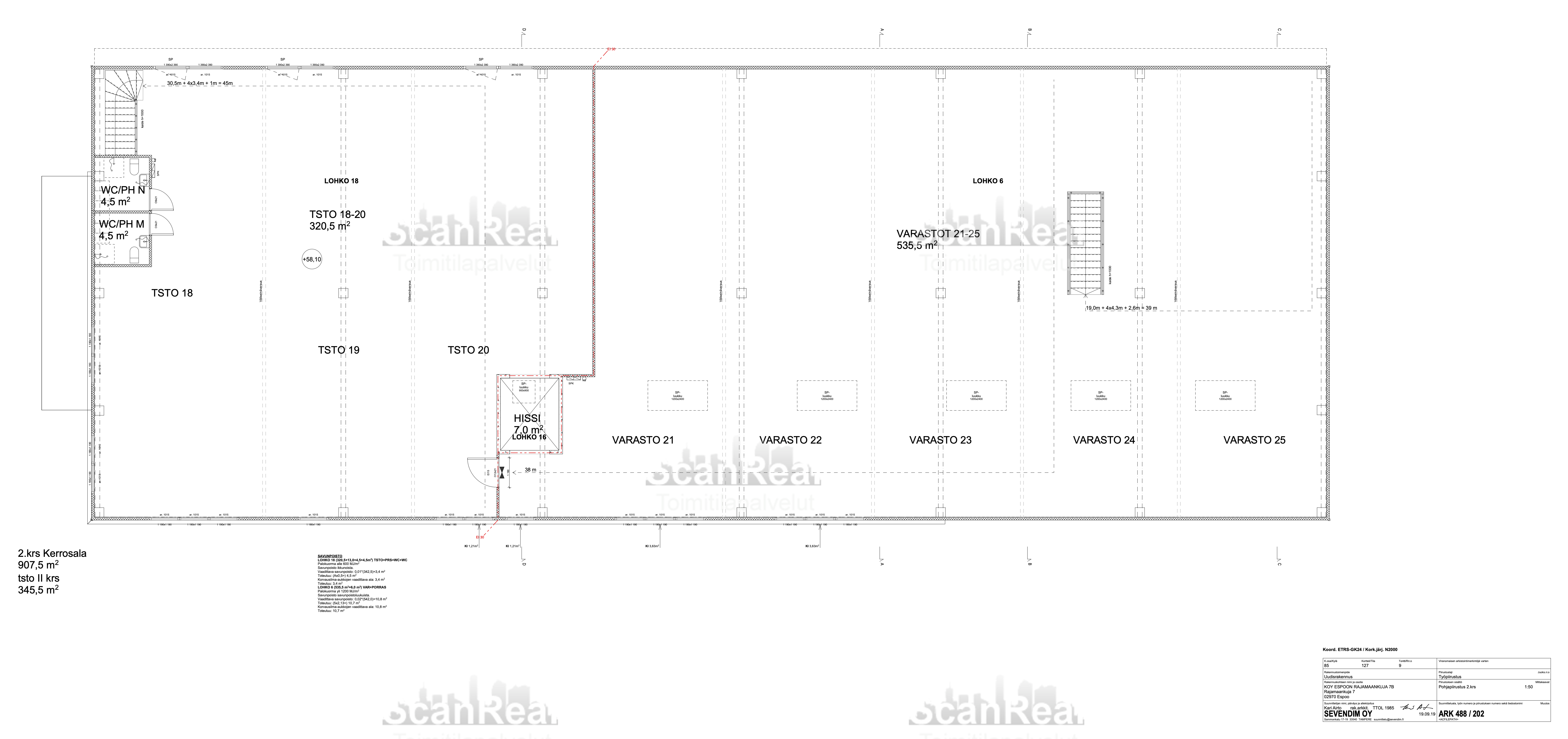
180 - 540 m2
Tilajako
Jaettavissa
Mahdollista jakaa esim. 100 m² / 120 m² / 140 m² / 180 m² osiin
Pohjapiirros
Kiinteistö
Hyvää varastotilaa rakennuksen 2. kerroksessa.
Lattian kantavuus 750 kg/m², korkeutta 3,8-4,2 m.
Hyvä lämmitetty tila.
Rakennuksessa kunnon tavarahissi 2,0tn, sekä kulkumahdollisuus myös kahden porrashuoneen kautta.
Maalämpö, oma veden- ja sähkön mittaus.
Mahdollista rakentaa toimistoja, myymälätilaa, kuntosali yms.
Pihalla noin 10 autopaikkaa jotka kuuluu yläkertaan.
Lattian kantavuus 750 kg/m², korkeutta 3,8-4,2 m.
Hyvä lämmitetty tila.
Rakennuksessa kunnon tavarahissi 2,0tn, sekä kulkumahdollisuus myös kahden porrashuoneen kautta.
Maalämpö, oma veden- ja sähkön mittaus.
Mahdollista rakentaa toimistoja, myymälätilaa, kuntosali yms.
Pihalla noin 10 autopaikkaa jotka kuuluu yläkertaan.
Vapautuu
Heti
Kerros
2 / 2
Energiatehokkuusluokka
Ei lain edellyttämää energiatodistusta
Jaettavissa
Hissi
Ota yhteyttä
ScanReal Oy LKV
Opus Business Park
Hitsaajankatu 24
00810 Helsinki
info@scanreal.fi
Puh:
Näytä puhelinnumero
020 730 8830
Sopivat toimitilat yhdellä otolla!
Kartoitamme toimitilatarpeesi ja etsimme yrityksellesi parhaiten sopivat vapaat toimitilat. Koska vuokranantajat maksavat palvelumme, on tämä yrityksellesi veloituksetonta.
OTA YHTEYTTÄ - SOVI NÄYTTÖ!
Kaikki kohteemme eivät ole netissä, kerro tilatarpeesi niin kartoitamme vaihtoehdot.
Palvelumme on tilanhakijalle ilmainen
Pyydä lisätietoa
