Vuokrataan toimistotilat - Helsinki
Kalevankatu 18, Kamppi, 00101 Helsinki #10698963
Vuokrattavana 2. kerroksen hyvää ja laadukasta toimistotilaa erinomaisella sijainnilla.
Osoite
Kalevankatu 18, 00101 Helsinki
Tilatyyppi
Toimistotilaa
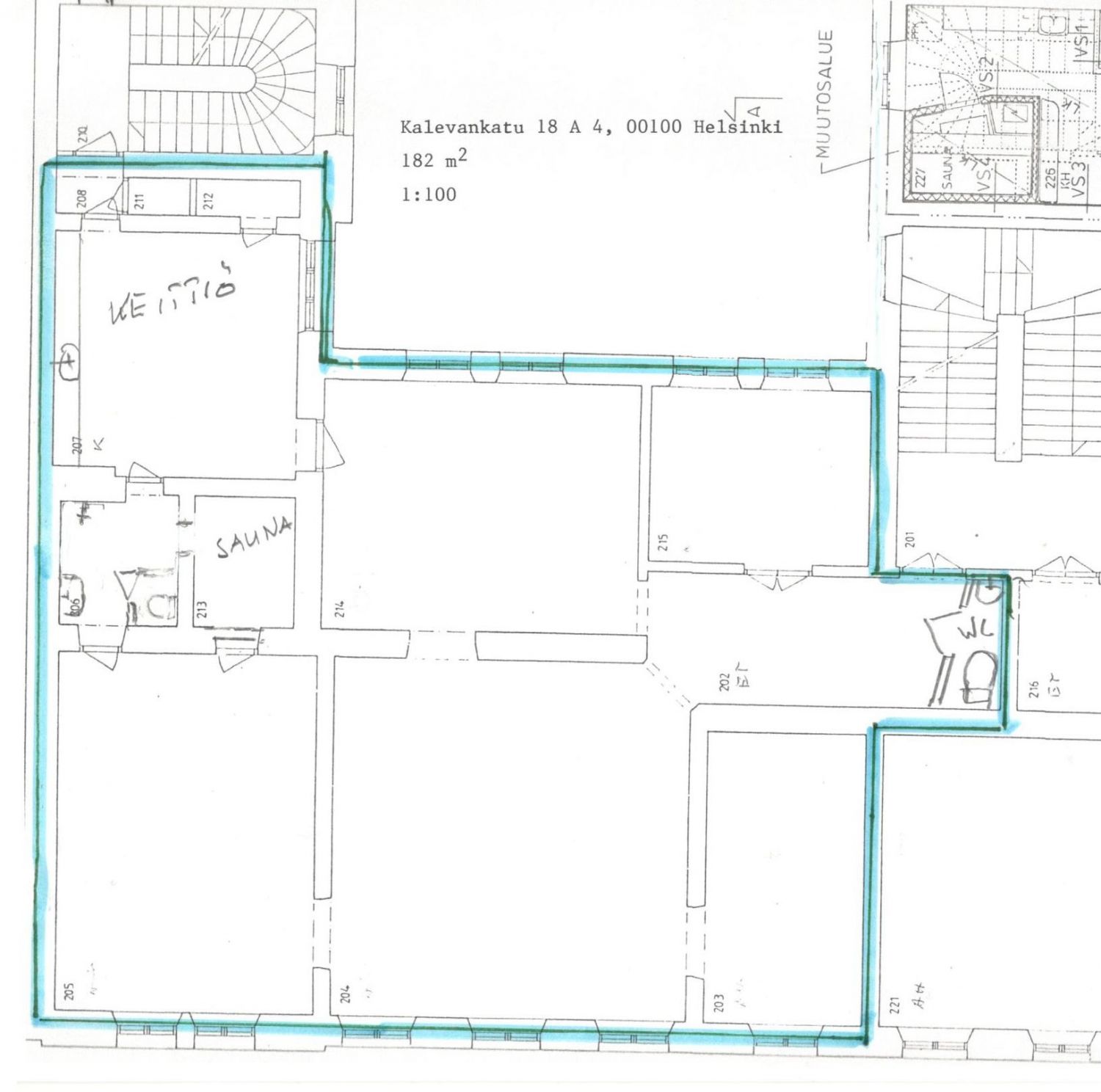
182 m2
Kiinteistö
Vuokrattavana 2. kerroksen hyvää ja laadukasta toimistotilaa erinomaisella sijainnilla. Tilassa on 5 huonetta, tilava keittiö, 2 wc-tilaa, sauna ja parveke.
Sijainti
Kamppi, Helsinki
Pysäköinti
Alueen eri pysäköintilaitokset sekä yrityspysäköintitunnuksella. Mahdollisesti
yksi autopaikka talon pihalta.
yksi autopaikka talon pihalta.
Palvelut
Kaikki palvelut lähialueella.
Kulkuyhteydet
-Metro
-Lähijuna
-Bussi
-Oma auto
-Lähijuna
-Bussi
-Oma auto
Vapautuu
Heti
Kerros
2
Energiatehokkuusluokka
Ei lain edellyttämää energiatodistusta
Näkyvällä paikalla
Hissi
Ota yhteyttä
REALIUM OY LKV
Tammasaarenkatu 1, 00180 Helsinki
Vaihde:
Näytä puhelinnumero
010 326 346
Tuomo Mäkelä
tuomo.makela@realium.fi
p.
Näytä puhelinnumero
044 050 1158
Joel Keto
joel.keto@realium.fi
p.
Näytä puhelinnumero
045 317 0330
KAIKKI TILAVAIHTOEHDOT KERRALLA!
SOITA - MEILAA JA TILAA NÄYTTÖ!
Ilmainen palvelu tilanhakijoille.
Kartoitamme parhaat tilavaihtoehdot.
Kaikki kohteet eivät ole netissä.
Pyydä lisätietoa
