Vuokrataan toimistotilat - Helsinki
Navigatortalo, Eteläinen Makasiinikatu 4, Kaartinkaupunki, 00130 Helsinki #10698336
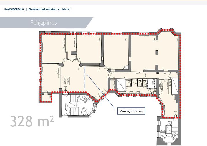
Kaartinkaupungin Navigator-talossa vuokrattavana poikkeuksellisen upea 2. kerroksen toimistotila 328 m2 aivan meren tuntumasta. Tila on täysin remontoitu 2023 jolloin siihen on uusittu mm. pintamateriaalit, sähkö- ja IT-kaapelointi, asennettu led-valaisimet ja huonekohtainen jäähdytys sekä uusittu keittiö ja wc-tilat. Ota yhteyttä ja sovi esittely, vuokrauspalvelumme on tilanhakijoille maksuton.
Osoite
Eteläinen Makasiinikatu 4, 00130 Helsinki
Tilatyyppi
Toimistotilaa
328 m2
Pohjapiirros
Tila soveltuu
Ravintola
Kiinteistö
Navigator-talo.
Sijainti
Unioninkadun kulmassa.
Ympäristö
Vastapäätä Hotelli, runsaasti toimistoja.
Pysäköinti
Esim. Kasarmitorin Aimo Park tai P-Tähtitornivuoren pysäköintihalli.
Palvelut
Talossa sauna-tilat.
Kulkuyhteydet
HSL, etelärannan ratikkapysäkille 100 m.
Vapautuu
Heti
Rakennusvuosi
1903
Saneerausvuosi
2018
Kerros
2
Ota yhteyttä
Senaatin Notariaatti Oy LKV
Lämmittäjänkatu 4 A
FIN-00880 Helsinki
Tel:
Näytä puhelinnumero
+358 9 7745 100
Pyydä lisätietoa
