Vuokrataan toimistotilat, varastotilat - Espoo
Ruukinkuja 4, Kivenlahti, 02330 Espoo #10698329
Vuokrattavana siistiä ja hyväkuntoista toimisto-/esittely-/ tai varastotilaa.
Osoite
Ruukinkuja 4, 02330 Espoo
Tilatyyppi
Toimistotilaa
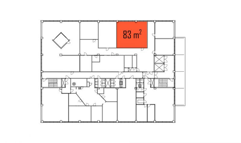
83 m2
Varastotilaa
83 m2
Yhteensä
83 m2
Kiinteistö
Vuokrattavana siistiä ja hyväkuntoista toimisto-/esittely-/ tai varastotilaa, johon kulkee tavarahissi. Tila kuuluu kokonaisuuteen, jossa tilavia toimistohuoneita ja varastohuoneita, yhteinen keittiö ja wc:t.
Sijainti
Kivenlahti, Espoo
Pysäköinti
Kiinteistön pihalla.
Palvelut
Kivenlahden palvelut.
Kulkuyhteydet
Hyvät kulkuyhteydet
Vapautuu
Heti
Kerros
2
Energiatehokkuusluokka
Ei lain edellyttämää energiatodistusta
Hissi
Lastauslaituri
Ota yhteyttä
REALIUM OY LKV
Tammasaarenkatu 1, 00180 Helsinki
Vaihde:
Näytä puhelinnumero
010 326 346
Tuomo Mäkelä
tuomo.makela@realium.fi
p.
Näytä puhelinnumero
044 050 1158
Joel Keto
joel.keto@realium.fi
p.
Näytä puhelinnumero
045 317 0330
KAIKKI TILAVAIHTOEHDOT KERRALLA!
SOITA - MEILAA JA TILAA NÄYTTÖ!
Ilmainen palvelu tilanhakijoille.
Kartoitamme parhaat tilavaihtoehdot.
Kaikki kohteet eivät ole netissä.
Pyydä lisätietoa
