Vuokrataan varastotilat - Helsinki
Itälahdenkatu 23, Lauttasaari, 00210 Helsinki #10698217
Vuokrattavana katutason siistiä varastotilaa Lauttasaaressa
Osoite
Itälahdenkatu 23, 00210 Helsinki
Tilatyyppi
Varastotilaa
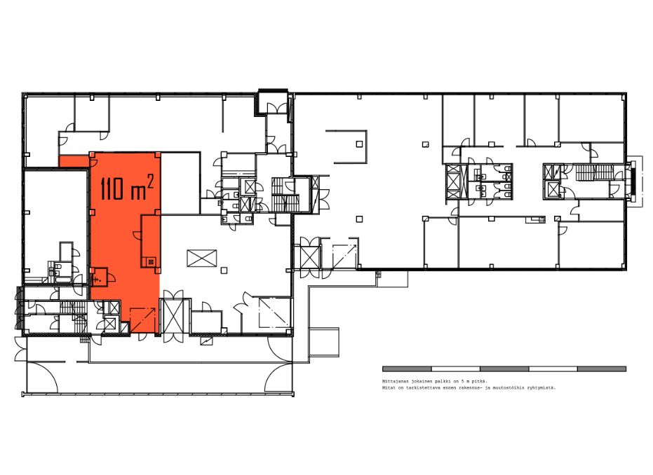
110 m2
Kiinteistö
Vuokrattavana katutason siistiä varastotilaa Lauttasaaressa. Tilaan on oma sisäänkäynti lastauslaiturilta (nosto-ovi 260 cm * 230 cm).
Sijainti
Lauttasaari, Helsinki
Pysäköinti
Kohteessa on omia parkkipaikkoja.
Kulkuyhteydet
-Metro
-Bussi
-Oma auto
-Bussi
-Oma auto
Muuta
Kiinteistössä henkilö- ja tavarahissit.
Vapautuu
01.04.2021
Kerros
1
Energiatehokkuusluokka
Ei lain edellyttämää energiatodistusta
Hissi
Lastauslaituri
Ota yhteyttä
REALIUM OY LKV
Tammasaarenkatu 1, 00180 Helsinki
Vaihde:
Näytä puhelinnumero
010 326 346
Tuomo Mäkelä
tuomo.makela@realium.fi
p.
Näytä puhelinnumero
044 050 1158
Joel Keto
joel.keto@realium.fi
p.
Näytä puhelinnumero
045 317 0330
KAIKKI TILAVAIHTOEHDOT KERRALLA!
SOITA - MEILAA JA TILAA NÄYTTÖ!
Ilmainen palvelu tilanhakijoille.
Kartoitamme parhaat tilavaihtoehdot.
Kaikki kohteet eivät ole netissä.
Pyydä lisätietoa
