Vuokrataan toimistotilat - Espoo
Ukonvaaja 2 A, Pohjois-Tapiola, 02130 Espoo #10697829
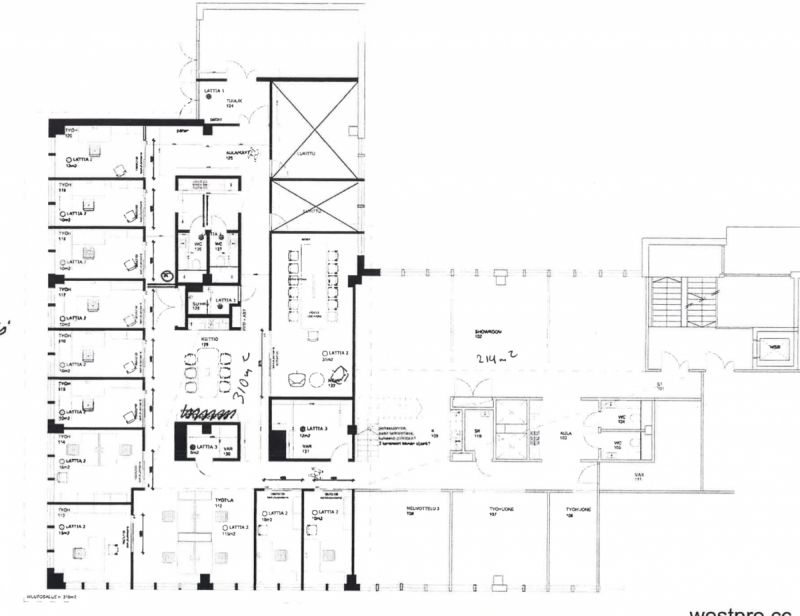
Vuokrataan hieno ja hyväkuntoinen toimistotila Pohjois-Tapiolasta. Tila saaneerattu kauttaaltaan pari vuotta sitten. Tilassa työhuoneita, avotilaa, keittiö, suihku ja useampi wc. Tilaa on mahdollista jakaa 214 m2 / 310 m2 tiloihin. Kiinteistön pihalta saatavilla autopaikkoja. Lisätietoja soita 020 730 4530 tai info@repoint.fi. Palvelumme on tilanhakijalle ilmainen.
Osoite
Ukonvaaja 2 A, 02130 Espoo
Tilatyyppi
Toimistotilaa
524 m2
Vapautuu
Kysy
Kerros
2
Ota yhteyttä
Repoint Toimitilat Oy
Itälahdenkatu 22 B, 00210 Helsinki
Näytä puhelinnumero
020 730 4530
Lisätietoja soita Näytä puhelinnumero 020 730 4530 tai info@repoint.fi
https://repoint.fi/Pyydä lisätietoa
