Vuokrataan toimistotilat, muut tilat - Helsinki
Valimotie 13 A, Pitäjänmäki, 00380 Helsinki #10697759
Modernia toimistotilaa tunnelmallisessa rakennuksessa.
Osoite
Valimotie 13 A, 00380 Helsinki
Tilatyyppi
Toimistotilaa
138,5 m2
Muuta tilaa
138,5 m2
Yhteensä
138,5 m2
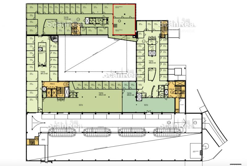
Pohjapiirros
Kiinteistö
2. kerroksen tyylikäs monikäyttöinen tila toimisto/koulutustila-tarkoitukseen.
Talossa toimii paljon erikokoisia yrityksiä, aina toimistohotellin yhden huoneen vuokralaisista isoihin toimijoihin. Kiinteistön laajat palvelut sekä suosittu ruokala takaavat viihtyvyyden ja tehokkuuden kaikille.
- Talossa 2 tavarahissiä ja lastausalue parkkihallissa
- Koneellinen jäähdytetty ilmanvaihto / huonekohtainen erillisjäähdytys
- Turvallista kulunvalvottua tilaa
- Autopaikat yhteensä 130 kpl, autohallissa ja katolla.
- Sauna ja kuntosali
- Aulapalvelut
- Modernit erikseen vuokrattavat neuvottelutilat
- Tarjolla myös noin 10-50 m2 pientoimistoja
Kiinteistö sijaitsee keskeisellä paikalla pääkaupunkiseudulla. Juna, Jokerilinja sekä bussiyhteydet ovat talon vieressä. Valimon asemalle kävelee viidessä minuutissa ja keskustaan sekä lentokentälle on alle 20 minuutin ajomatka.
Talossa toimii paljon erikokoisia yrityksiä, aina toimistohotellin yhden huoneen vuokralaisista isoihin toimijoihin. Kiinteistön laajat palvelut sekä suosittu ruokala takaavat viihtyvyyden ja tehokkuuden kaikille.
- Talossa 2 tavarahissiä ja lastausalue parkkihallissa
- Koneellinen jäähdytetty ilmanvaihto / huonekohtainen erillisjäähdytys
- Turvallista kulunvalvottua tilaa
- Autopaikat yhteensä 130 kpl, autohallissa ja katolla.
- Sauna ja kuntosali
- Aulapalvelut
- Modernit erikseen vuokrattavat neuvottelutilat
- Tarjolla myös noin 10-50 m2 pientoimistoja
Kiinteistö sijaitsee keskeisellä paikalla pääkaupunkiseudulla. Juna, Jokerilinja sekä bussiyhteydet ovat talon vieressä. Valimon asemalle kävelee viidessä minuutissa ja keskustaan sekä lentokentälle on alle 20 minuutin ajomatka.
Vapautuu
Heti
Rakennusvuosi
1974
Saneerausvuosi
1996
Kerros
2 / 6
Energiatehokkuusluokka
Ei lain edellyttämää energiatodistusta
Hissi
Ota yhteyttä
ScanReal Oy LKV
Opus Business Park
Hitsaajankatu 24
00810 Helsinki
info@scanreal.fi
Puh:
Näytä puhelinnumero
020 730 8830
Sopivat toimitilat yhdellä otolla!
Kartoitamme toimitilatarpeesi ja etsimme yrityksellesi parhaiten sopivat vapaat toimitilat. Koska vuokranantajat maksavat palvelumme, on tämä yrityksellesi veloituksetonta.
OTA YHTEYTTÄ - SOVI NÄYTTÖ!
Kaikki kohteemme eivät ole netissä, kerro tilatarpeesi niin kartoitamme vaihtoehdot.
Palvelumme on tilanhakijalle ilmainen
Pyydä lisätietoa
