Vuokrataan toimistotilat - Helsinki
Kumpulantie 1, Kumpula, 00520 Helsinki #10696731
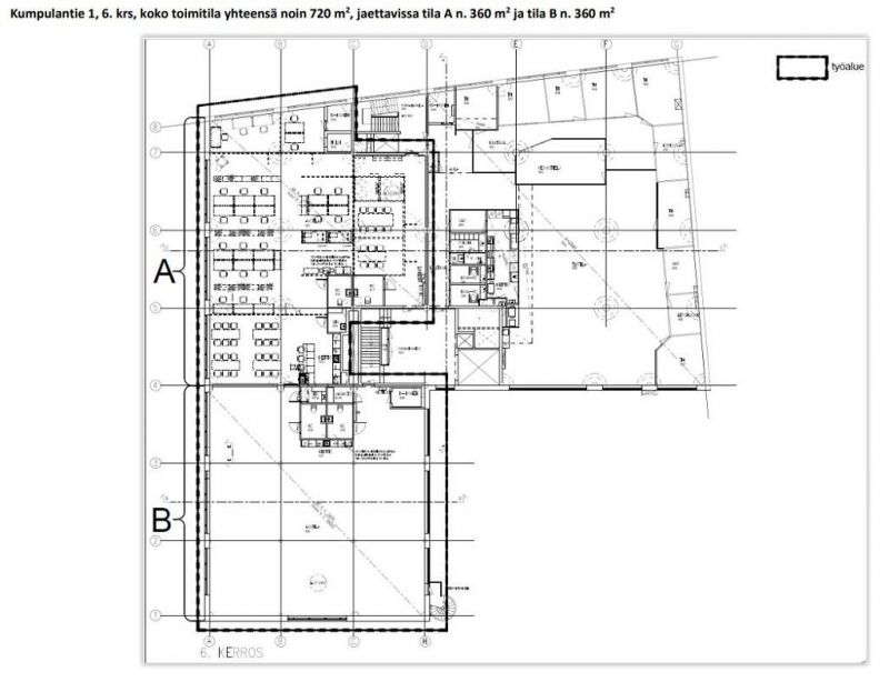
Vuokrattavissa edustava toimistotila keskeiseltä sijainnilta Helsingin Kumpulasta. Toimisto on täysin saneerattu ja tiloissa on jäähdyttävä ilmastointi. Tilassa on oma keittiö sekä wc-tilat ja se on mahdollista vuokrata yhdessä viereisen 360 m² tilan kanssa.Hyvät julkiset yhteydet, Pasilan juna-asema on kävelymatkan päässä. Lisätietoja soita 020 730 4530 tai info@repoint.fi. Palvelumme on tilanhakijalle ilmainen.
Osoite
Kumpulantie 1, 00520 Helsinki
Tilatyyppi
Toimistotilaa
360 m2
Vapautuu
Kysy
Kerros
6
Ota yhteyttä
Repoint Toimitilat Oy
Itälahdenkatu 22 B, 00210 Helsinki
Näytä puhelinnumero
020 730 4530
Lisätietoja soita Näytä puhelinnumero 020 730 4530 tai info@repoint.fi
https://repoint.fi/Pyydä lisätietoa
