Vuokrataan liiketilat - Helsinki
Simonkatu 6, Keskusta, 00100 Helsinki #10696723
Tarjolla katutason siistiä liiketilaa.
Osoite
Simonkatu 6, 00100 Helsinki
Tilatyyppi
Liiketilaa
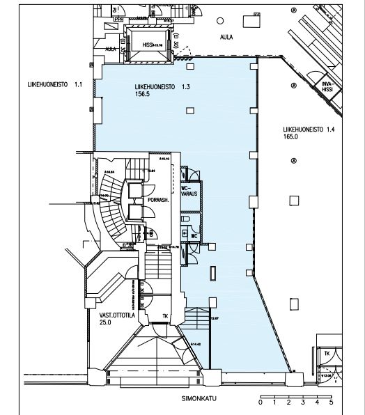
156 m2
Tilajako
Jaettavissa
Laajennettavissa
Kiinteistö
Simonkadulla Forumissa Kukontorin ensimmäisessä kerroksessa tarjolla siistiä liiketilaa. Tilaan on kaksi sisäänkäyntiä sekä Simonkadulta että kauppakeskuksen puolelta. 165 m2- ja 156,5 m2- liiketilat mahdollista yhdistää.
Sijainti
Helsingin keskusta, Kauppakeskus Forum.
Pysäköinti
Kampin pysäköintilaitos.
Palvelut
Helsingin keskustan monipuoliset palvelut.
Kulkuyhteydet
Erinomaiset julkiset kulkuyhteydet.
Vapautuu
Heti
Kerros
1
Energiatehokkuusluokka
Ei lain edellyttämää energiatodistusta
Katutasossa
Näkyvällä paikalla
Jaettavissa
Hissi
Ota yhteyttä
REALIUM OY LKV
Tammasaarenkatu 1, 00180 Helsinki
Vaihde:
Näytä puhelinnumero
010 326 346
Tuomo Mäkelä
tuomo.makela@realium.fi
p.
Näytä puhelinnumero
044 050 1158
Joel Keto
joel.keto@realium.fi
p.
Näytä puhelinnumero
045 317 0330
KAIKKI TILAVAIHTOEHDOT KERRALLA!
SOITA - MEILAA JA TILAA NÄYTTÖ!
Ilmainen palvelu tilanhakijoille.
Kartoitamme parhaat tilavaihtoehdot.
Kaikki kohteet eivät ole netissä.
Pyydä lisätietoa
