Vuokrataan varastotilat - Helsinki
Kiviaidankatu 2, Lauttasaari, 00210 Helsinki #10696422
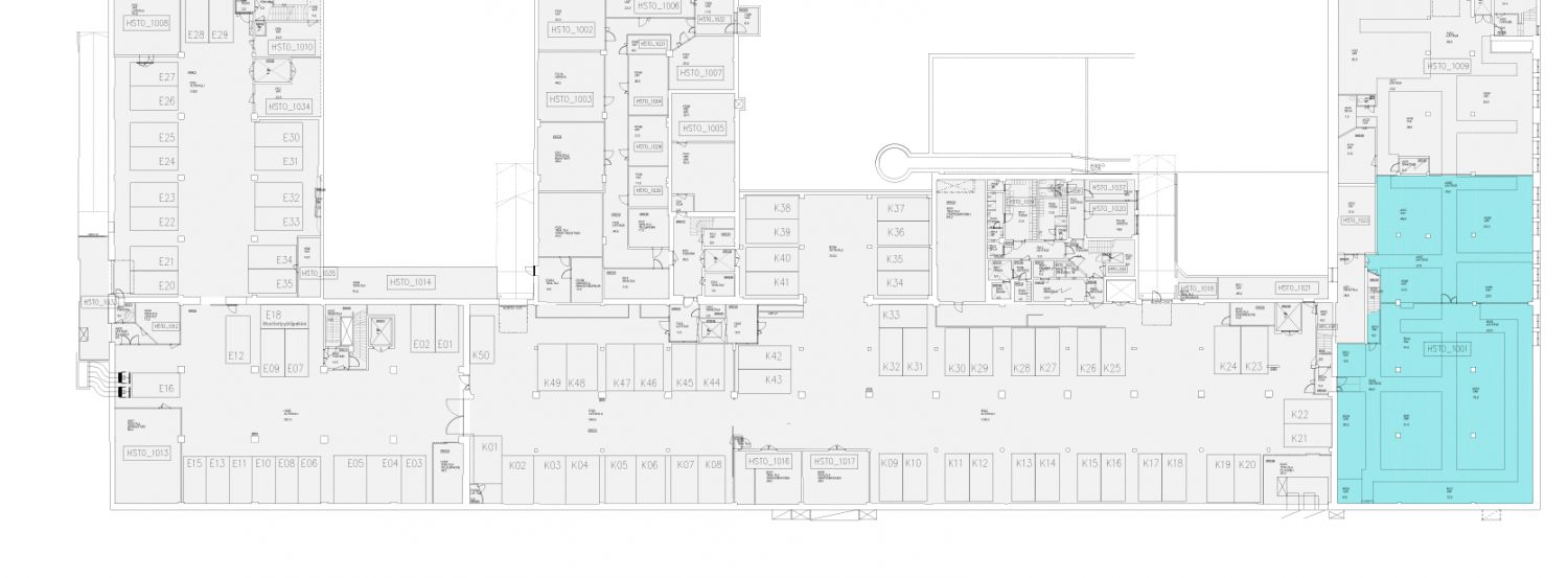
Vuokrattavana tilavaa varastotilaa.
Osoite
Kiviaidankatu 2, 00210 Helsinki
Tilatyyppi
Varastotilaa
628 m2
Kiinteistö
Vuokrattavana tilavaa varastotilaa. Sisäänkäynti autohallin kautta.
Sijainti
Lauttasaari, Helsinki
Pysäköinti
Autopaikkoja pihalla ja hallissa.
Kulkuyhteydet
Hyvät kulkuyhteydet
Vapautuu
Heti
Kerros
kellari
Energiatehokkuusluokka
Ei lain edellyttämää energiatodistusta
Näkyvällä paikalla
Hissi
Ota yhteyttä
REALIUM OY LKV
Tammasaarenkatu 1, 00180 Helsinki
Vaihde:
Näytä puhelinnumero
010 326 346
Tuomo Mäkelä
tuomo.makela@realium.fi
p.
Näytä puhelinnumero
044 050 1158
Joel Keto
joel.keto@realium.fi
p.
Näytä puhelinnumero
045 317 0330
KAIKKI TILAVAIHTOEHDOT KERRALLA!
SOITA - MEILAA JA TILAA NÄYTTÖ!
Ilmainen palvelu tilanhakijoille.
Kartoitamme parhaat tilavaihtoehdot.
Kaikki kohteet eivät ole netissä.
Pyydä lisätietoa
