Vuokrataan toimistotilat - Helsinki
Kasarmikatu 44, Kaartinkaupunki, 00130 Helsinki #10696393
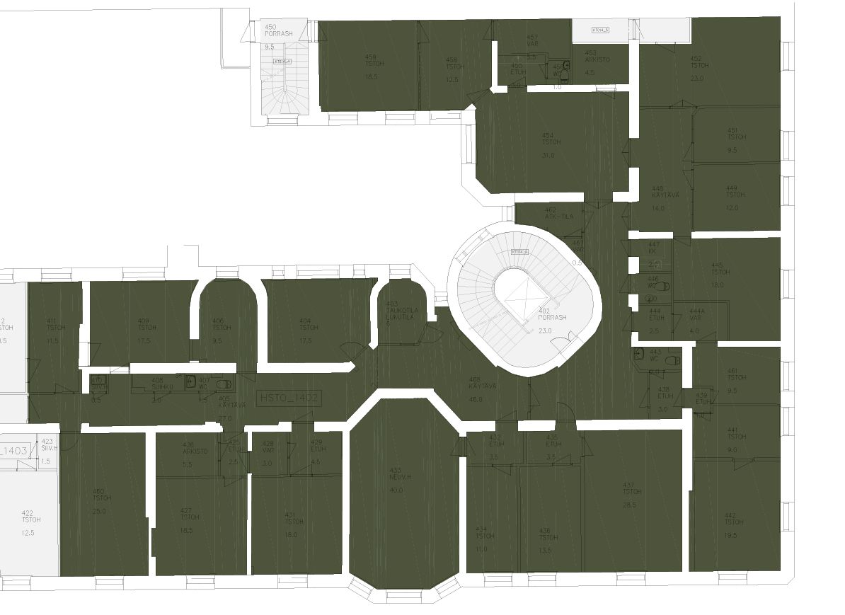
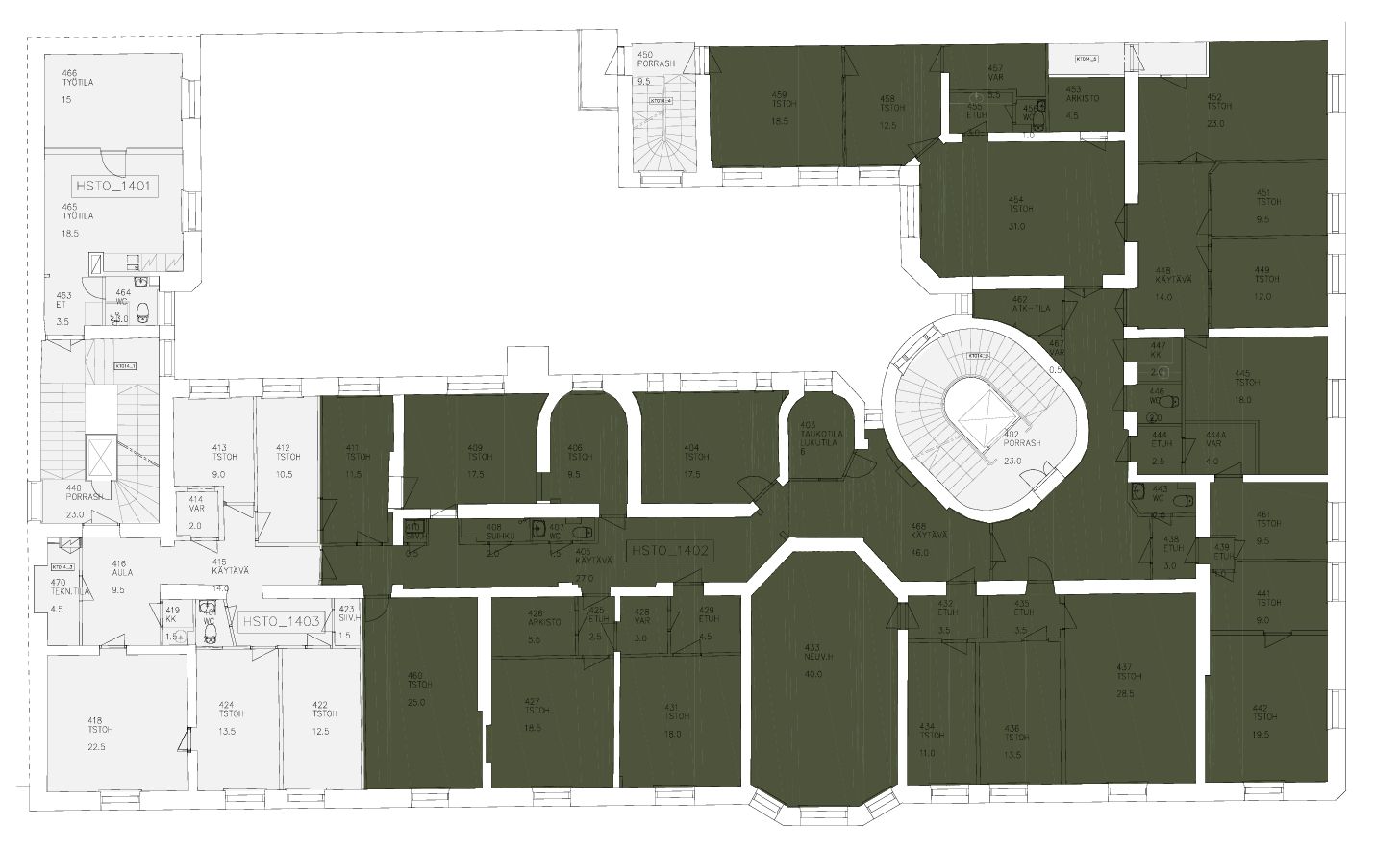
Vuokrattavana hyväkuntoista, tilavaa huonetoimistotilaa, jossa on isoja huoneita ja neuvottelutiloja.
Osoite
Kasarmikatu 44, 00130 Helsinki
Tilatyyppi
Toimistotilaa
551,5 m2
Kiinteistö
Vuokrattavana hyväkuntoista, tilavaa huonetoimistotilaa, jossa on isoja huoneita ja neuvottelutiloja. Tilassa on suihku- ja wc-tilat. Huoneet muokattavissa suuremmiksi.
Sijainti
Kaartinkaupunki, Helsinki
Pysäköinti
Keskustan pysäköintilaitokset.
Palvelut
Keskustan palvelut
Kulkuyhteydet
-Metro
-Bussi
-Raitiovaunu
-Oma auto
-Bussi
-Raitiovaunu
-Oma auto
Vapautuu
Heti
Kerros
4
Energiatehokkuusluokka
Ei lain edellyttämää energiatodistusta
Näkyvällä paikalla
Hissi
Ota yhteyttä
REALIUM OY LKV
Tammasaarenkatu 1, 00180 Helsinki
Vaihde:
Näytä puhelinnumero
010 326 346
Tuomo Mäkelä
tuomo.makela@realium.fi
p.
Näytä puhelinnumero
044 050 1158
Joel Keto
joel.keto@realium.fi
p.
Näytä puhelinnumero
045 317 0330
KAIKKI TILAVAIHTOEHDOT KERRALLA!
SOITA - MEILAA JA TILAA NÄYTTÖ!
Ilmainen palvelu tilanhakijoille.
Kartoitamme parhaat tilavaihtoehdot.
Kaikki kohteet eivät ole netissä.
Pyydä lisätietoa
