Vuokrataan toimistotilat - Tampere
Finlaysoninkatu 7, 33210 Tampere #10696100
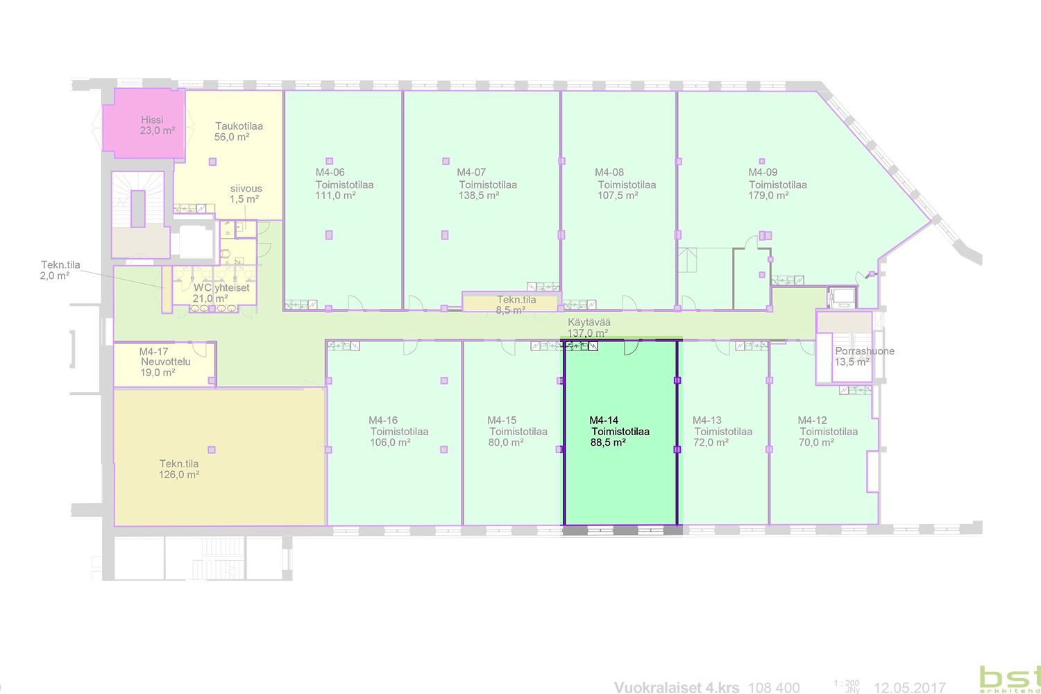
Vuokrattavana siistiä, modernia toimistotilaa Finlaysonin alueella.
Osoite
Finlaysoninkatu 7, 33210 Tampere
Tilatyyppi
Toimistotilaa
88,5 m2
Kiinteistö
Vuokrattavana siistiä, modernia toimistotilaa Finlaysonin alueella. Tilassa on avotoimistotila, oma minikeittiösyvennys. Vuokralaisten yhteiskäytössä on 3. ja 4. kerroksessa sijaitsevat neuvottelutilat sekä taukokeittiö ja wc-tilat.
Sijainti
Tampereen keskusta
Pysäköinti
Finlaysonin alueella on oma yli 600 autopaikan pysäköintilaitos P-Plevna.
Palvelut
Tampereen keskustan monipuoliset palvelut ovat kävelyetäisyydellä.
Kulkuyhteydet
- Bussi
- Juna
- Oma auto
- Juna
- Oma auto
Vapautuu
Heti
Kerros
4
Energiatehokkuusluokka
Ei lain edellyttämää energiatodistusta
Näkyvällä paikalla
Hissi
Ota yhteyttä
REALIUM OY LKV
Tammasaarenkatu 1, 00180 Helsinki
Vaihde:
Näytä puhelinnumero
010 326 346
Tuomo Mäkelä
tuomo.makela@realium.fi
p.
Näytä puhelinnumero
044 050 1158
Joel Keto
joel.keto@realium.fi
p.
Näytä puhelinnumero
045 317 0330
KAIKKI TILAVAIHTOEHDOT KERRALLA!
SOITA - MEILAA JA TILAA NÄYTTÖ!
Ilmainen palvelu tilanhakijoille.
Kartoitamme parhaat tilavaihtoehdot.
Kaikki kohteet eivät ole netissä.
Pyydä lisätietoa
