Vuokrataan toimistotilat - Helsinki
Trigora, Urho Kekkosen katu 3-7, Kamppi, 00100 Helsinki #10695905
Moderni toimistotila Urhontornin 3:ssä kerroksessa, sisäänkäynti Urho Kekkosen kadulta, ikkunat ja katettu ulkoterassi avautuvat Kampintorille. Hissiyhteys kauppakeskukseen, josta sujuvat liikenneyhteydet metrolla ja busseilla kaikkialle. Ota yhteyttä ja sovi esittely, palvelumme on tilanhakijoille maksutonta. puh. 09 7745 100.
Osoite
Urho Kekkosen katu 3-7, 00100 Helsinki
Tilatyyppi
Toimistotilaa
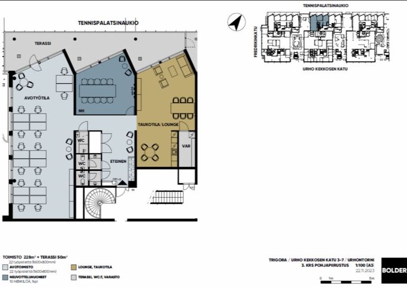
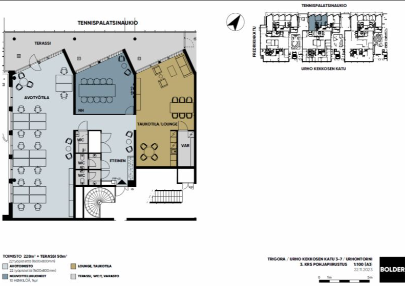
228 m2
Pohjapiirros
Kiinteistö
Urhontorni on osa Kampin kauppakeskuksen yhteydessä sijaitsevaa Trigora toimistokiinteistöä. Trigora on rakennettu 2005, toimistotilaa on kolmessa tornissa yhteensä 12 000 m2 ja sen on suunnitellut arkkitehti Pekka Helin. Torneista on suora yhteys kauppakeskukseen, joten kattavat palvelut, ravintolamaailma, kaupat, julkiset kulkuvälineet ja parkkihallit välittömässä läheisyydessä.
Sijainti
Kampin kauppakeskuksen yhteydessä.
Ympäristö
Kampin liike ja toimistokeskus
Pysäköinti
Maanalainen parkkihallisto.
Palvelut
Kampin liikekeskus.
Kulkuyhteydet
Metro, bussit, ratikat.
Vapautuu
Heti
Rakennusvuosi
2005
Kerros
3 / 8
Energiatehokkuusluokka
Ei lain edellyttämää energiatodistusta
Näkyvällä paikalla
Hissi
Ota yhteyttä
Senaatin Notariaatti Oy LKV
Lämmittäjänkatu 4 A
FIN-00880 Helsinki
Tel:
Näytä puhelinnumero
+358 9 7745 100
Pyydä lisätietoa
