Vuokrataan toimistotilat - Helsinki
Sörnäisten Rantatie 29, Kalasatama, 00580 Helsinki #10694603
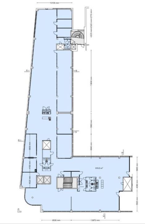
Vuokrataan ylimmän kerroksen avara ja valoisa monitilatoimisto Kalasatamasta. Avotilan lisäksi muutama työhuone, tiimihuoneita, keittiö ja wc-tilat. Hienot näkymät Suvilahden suuntaan!
Tila on muokattavissa käyttäjän tarpeeseen sopivaksi ja voidaan myös laajentaa 1500m2 asti kahden kerroksen toteutuksena.
Vapautuminen sopimuksen mukaan.
Business Park Kalasataman Kummeli sijaitsee kasvavalla ja kehittyvällä alueella Helsingissä, hyvien kulkuyhteyksien varrella.
Hyvät julkiset kulkuyhteydet. Metroasema ja Redin palvelut kävelyetäisyydellä.
Lisätietoja soita 020 730 4530 tai info@repoint.fi. Palvelumme on tilanhakijalle ilmainen.
Repoint Toimitilat Oy
Itälahdenkatu 22 B, 00210 Helsinki
Näytä puhelinnumero
020 730 4530
Lisätietoja soita Näytä puhelinnumero 020 730 4530 tai info@repoint.fi
https://repoint.fi/