Vuokrataan toimistotilat - Helsinki
Lautatarhankatu 8, Kalasatama, 00580 Helsinki #10694369
Vuokrataan kaikki nykyajan vaatimukset täyttävää modernia toimistotilaa Kalasatamassa REDin kyljessä ja aivan metroaseman vieressä. Kiinteistö on tasokas kaikilla Business Park palveluilla, mm. neuvottelukeskus, luentosali, kuntosali ja lounasravintola. Kuvat ovat yleisluonteisia ja edustavat kiinteistön yleistä tasoa.
Osoite
Lautatarhankatu 8, 00580 Helsinki
Tilatyyppi
Toimistotilaa
390 m2
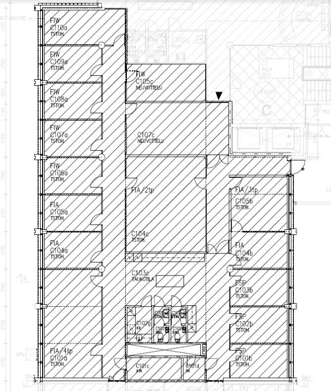
Pohjapiirros
Kiinteistö
TROOLI- KOy Tynnyrintekijänkatu 1C
Sijainti
Kalasataman metroaseman vieressä REDin kyljessä.
Kulkuyhteydet
Metro, bussit.
Muuta
Kiinteistössä on mahdollisuus vuokrata neuvottelutiloja. Kiinteistössä on myös pyöräparkki, kuntosali, autohalli ja lounasravintola.
Katso lisää kohteita kotisivujemme www.senaatinnotariaatti.fi hakukoneesta, sivustolta löytyy myös kohteita joita ei ole yleisessä jakelussa. Tai soita meille suoraan puh. 09 7745 100 ja kerro tarkemmin tilatarpeistanne niin löydämme teille parhaan mahdollisen tarjolla olevan toimitilaratkaisun.
Katso lisää kohteita kotisivujemme www.senaatinnotariaatti.fi hakukoneesta, sivustolta löytyy myös kohteita joita ei ole yleisessä jakelussa. Tai soita meille suoraan puh. 09 7745 100 ja kerro tarkemmin tilatarpeistanne niin löydämme teille parhaan mahdollisen tarjolla olevan toimitilaratkaisun.
Vapautuu
Heti
Rakennusvuosi
2002
Kerros
1 / 6
Energiatehokkuusluokka
Ei lain edellyttämää energiatodistusta
Näkyvällä paikalla
Hissi
Liitetiedostot
Ota yhteyttä
Senaatin Notariaatti Oy LKV
Lämmittäjänkatu 4 A
FIN-00880 Helsinki
Tel:
Näytä puhelinnumero
+358 9 7745 100
Pyydä lisätietoa
