Vuokrataan toimistotilat - Helsinki
Elimäenkatu 17-19, Vallila, 00510 Helsinki #10694067
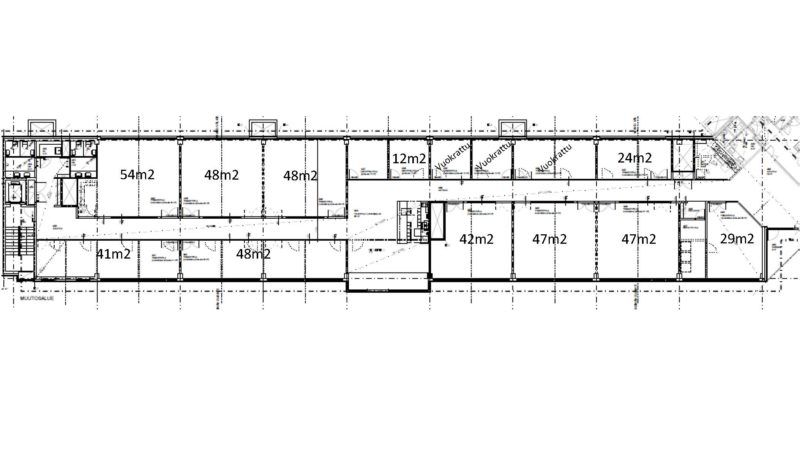
Vuokrattavana moderneja pientoimistotiloja.
Osoite
Elimäenkatu 17-19, 00510 Helsinki
Tilatyyppi
Toimistotilaa
48 m2
Kiinteistö
Vuokrattavana moderneja pientoimistotiloja. Tilat sijaitsevat pientoimistosiivessä 4. kerroksessa. Kerroksessa on yhteiskäyttöinen iso avokeittiö & lounge sekä wc-tilat. Kerroksessa on 1 yhteinen neuvottelutila ja puhelinkoppeja.
Sijainti
Vallila, Helsinki
Pysäköinti
Kiinteistön parkkihallissa.
Palvelut
-Aulapalvelu
-Lounasravintola
-Neuvottelutiloja
-Auditorio
-Saunatilat
-Lounasravintola
-Neuvottelutiloja
-Auditorio
-Saunatilat
Kulkuyhteydet
-Metroasema 1,3 km
-Raitiovaunupysäkki 400 m
-Bussipysäkki 150 m
-Raitiovaunupysäkki 400 m
-Bussipysäkki 150 m
Vapautuu
Heti
Kerros
4
Energiatehokkuusluokka
Ei lain edellyttämää energiatodistusta
Näkyvällä paikalla
Hissi
Ota yhteyttä
REALIUM OY LKV
Tammasaarenkatu 1, 00180 Helsinki
Vaihde:
Näytä puhelinnumero
010 326 346
Tuomo Mäkelä
tuomo.makela@realium.fi
p.
Näytä puhelinnumero
044 050 1158
Joel Keto
joel.keto@realium.fi
p.
Näytä puhelinnumero
045 317 0330
KAIKKI TILAVAIHTOEHDOT KERRALLA!
SOITA - MEILAA JA TILAA NÄYTTÖ!
Ilmainen palvelu tilanhakijoille.
Kartoitamme parhaat tilavaihtoehdot.
Kaikki kohteet eivät ole netissä.
Pyydä lisätietoa
