Vuokrataan varastotilat - Helsinki
Orapihlajatie 41, Haaga, 00320 Helsinki #10693577
Pienvarastoja Haagaan
Osoite
Orapihlajatie 41, 00320 Helsinki
Tilatyyppi
Varastotilaa
5 - 27 m2
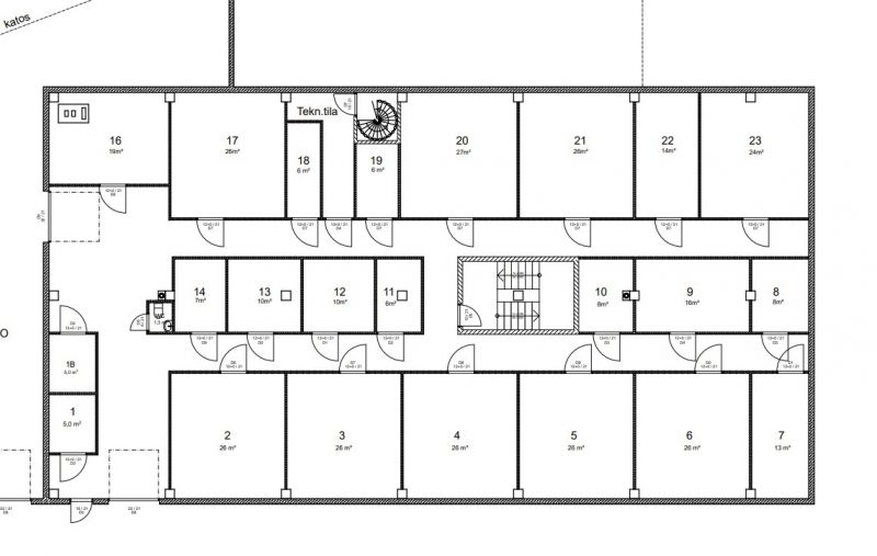
Pohjapiirros
Vuokra
Kysy
Vuokraan sisältyy sähkö, lämpö
Pysäköinti
Kadulla
Muuta
Haagassa noin 5 - 27 m2:n varastoja.
Nosto-ovi ja käyntiovi, lastauslaituri.
Varastojen ovien leveys 1,2 m. Varastotilojen korkeus 3,1 m - 3,3 m.
Varastojen koot ja vuokrahinnat liitteenä kohdekuvien joukossa.
Murtovarmat tuplaseinät, kameravalvonta 24 h/vrk.
Vuokraan ei lisätä arvonlisäveroa, soveltuu myös yksityistalouksille.
Juna-asema kävelymatkan päässä, rauhallinen alue.
Kadun varressa autolle 4 tunnin paikkoja.
Sovi esittely: tapio@realsale.fi tai p. 040 55 88 226.
Nosto-ovi ja käyntiovi, lastauslaituri.
Varastojen ovien leveys 1,2 m. Varastotilojen korkeus 3,1 m - 3,3 m.
Varastojen koot ja vuokrahinnat liitteenä kohdekuvien joukossa.
Murtovarmat tuplaseinät, kameravalvonta 24 h/vrk.
Vuokraan ei lisätä arvonlisäveroa, soveltuu myös yksityistalouksille.
Juna-asema kävelymatkan päässä, rauhallinen alue.
Kadun varressa autolle 4 tunnin paikkoja.
Sovi esittely: tapio@realsale.fi tai p. 040 55 88 226.
Vapautuu
Heti
Energiatehokkuusluokka
H (ei luokitusta)
Lastauslaituri
Ota yhteyttä
Pyydä lisätietoa
