Vuokrataan toimistotilat - Helsinki
Orapihlajatie 41, Haaga, 00320 Helsinki #10693575
Siistiä jäähdytettyä toimistotilaa Haagassa
Osoite
Orapihlajatie 41, 00320 Helsinki
Tilatyyppi
Toimistotilaa
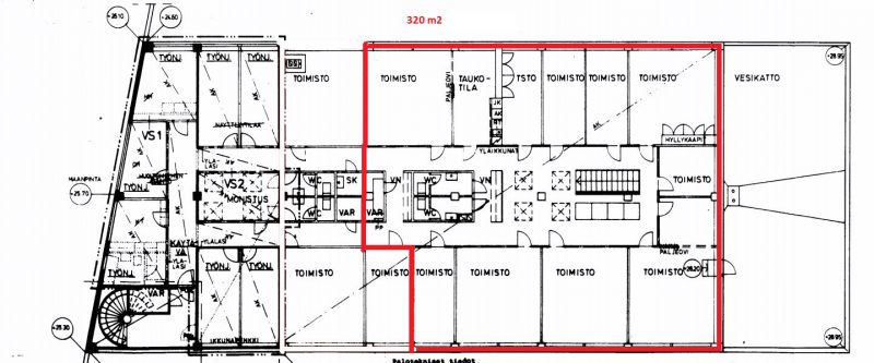
320 m2
Pohjapiirros
Vuokra
Kysy
Vuokraan sisältyy vesi, lämpö
Pysäköinti
Pihalla ja kadulla
Muuta
Hyväkuntoista jäähdytettyä toimistotilaa noin 320 m2.
Toinen krs, jäähdytys ilmalämpöpumpuilla, laminaattilattia, Cat6-kaapelointi, taloon tulee valokaapeli.
Aula, 9 huonetta, 2 x wc, keittiö. Käynti kiinteistön pääsisäänkäynnin kautta kadun puolelta.
Loistavat liikenneyhteydet, Huopalahden asema kävelymatkan päässä, samoin bussilinjat.
Pihalta mahdollista vuokrata autopaikkoja. Hiljainen katu, jonka varrella hyvin parkkitilaa.
TARJOUS: Ensimmäinen vuosi 2560 eur/kk, jonka jälkeen 3520 eur/kk. Edellytyksenä 3 vuoden sopimus.
Sähkö erilliskorvaus.
Vapautuu sopimuksen mukaan.
Sovi esittely: tapio@realsale.fi tai p. 040 5588 226
Toinen krs, jäähdytys ilmalämpöpumpuilla, laminaattilattia, Cat6-kaapelointi, taloon tulee valokaapeli.
Aula, 9 huonetta, 2 x wc, keittiö. Käynti kiinteistön pääsisäänkäynnin kautta kadun puolelta.
Loistavat liikenneyhteydet, Huopalahden asema kävelymatkan päässä, samoin bussilinjat.
Pihalta mahdollista vuokrata autopaikkoja. Hiljainen katu, jonka varrella hyvin parkkitilaa.
TARJOUS: Ensimmäinen vuosi 2560 eur/kk, jonka jälkeen 3520 eur/kk. Edellytyksenä 3 vuoden sopimus.
Sähkö erilliskorvaus.
Vapautuu sopimuksen mukaan.
Sovi esittely: tapio@realsale.fi tai p. 040 5588 226
Vapautuu
sopimuksen mukaan
Energiatehokkuusluokka
H (ei luokitusta)
Ota yhteyttä
Pyydä lisätietoa
