Vuokrataan toimistotilat - Helsinki
Hitsaajankatu 4, Herttoniemi, 00810 Helsinki #10692757
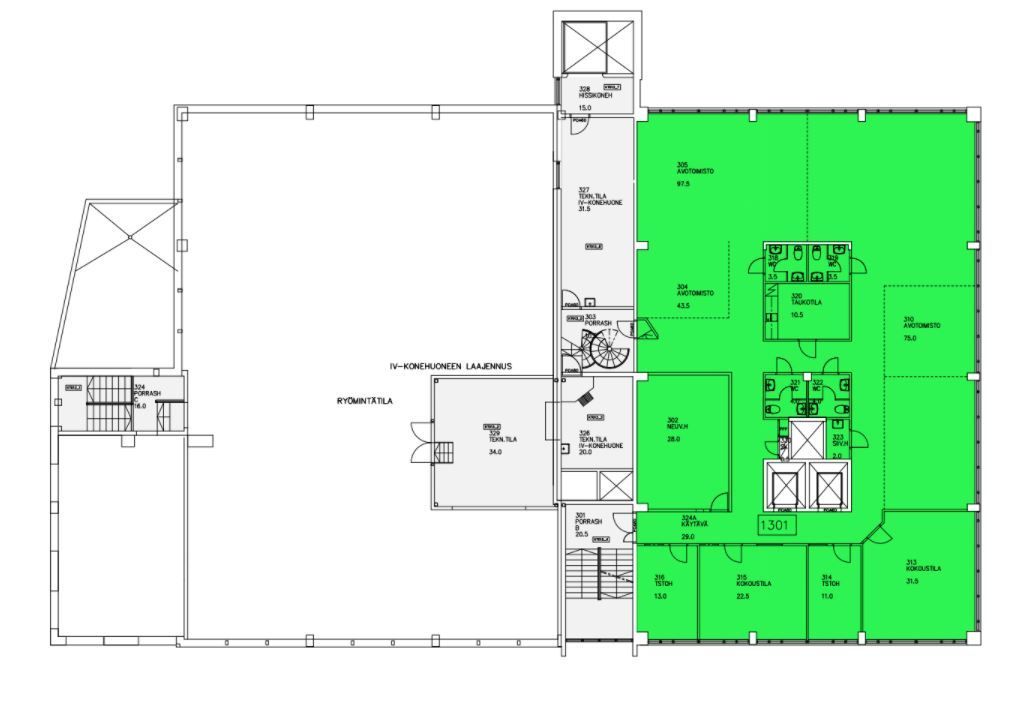
Vuokrataan 3. kerroksen hyväkuntoinen kombitila, joka koostuu avotilasta ja huoneista. Kiinteistö sijaitsee keskeisellä paikalla Herttoniemen metroaseman läheisyydessä.
Lisätietoja soita 020 730 4530 tai info@repoint.fi. Palvelumme on tilanhakijalle ilmainen.
Osoite
Hitsaajankatu 4, 00810 Helsinki
Tilatyyppi
Toimistotilaa
386,5 m2
Vapautuu
Kysy
Kerros
3
Ota yhteyttä
Repoint Toimitilat Oy
Itälahdenkatu 22 B, 00210 Helsinki
Näytä puhelinnumero
020 730 4530
Lisätietoja soita Näytä puhelinnumero 020 730 4530 tai info@repoint.fi
https://repoint.fi/Pyydä lisätietoa
