Vuokrataan toimistotilat - Helsinki
Kasarmikatu 44, Kaartinkaupunki, 00130 Helsinki #10692481
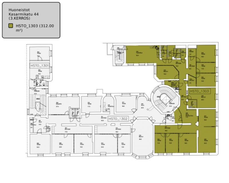
Edustava toimistotila vuokrattavana arvokiinteistön 3. kerroksessa vain kivenheiton päässä Esplanadipuistosta. Tilassa on eri kokoisia huoneita, vuokrattava tila on 312 m2. Toimiston sisäkuvat ovat yleisluonteisia kuvia kiinteistön toimistotiloista, eivätkä välttämättä ko. tilasta otettuja. Ota yhteyttä ja sovi esittely, vuokrauspalvelumme on tilanhakijoille maksuton.
Osoite
Kasarmikatu 44, 00130 Helsinki
Tilatyyppi
Toimistotilaa
312 m2
Pohjapiirros
Sijainti
Kasarmikadun ja Rikhardinkadun kulmassa.
Pysäköinti
Kasarmitorin pysäköintihalli.
Palvelut
Kaikki keskustan palvelut.
Kulkuyhteydet
HSL, metro, raitiovaunut, VR lähietäisyydellä.
Vapautuu
Heti
Kerros
3 / 6
Energiatehokkuusluokka
Ei lain edellyttämää energiatodistusta
Näkyvällä paikalla
Hissi
Ota yhteyttä
Senaatin Notariaatti Oy LKV
Lämmittäjänkatu 4 A
FIN-00880 Helsinki
Tel:
Näytä puhelinnumero
+358 9 7745 100
Pyydä lisätietoa
