Vuokrataan tuotantotilat - Helsinki
Muonamiehentie 12, Pitäjänmäki, 00390 Helsinki #10692374
Vuokrataan valmis kokonaisuus autohuololle tai autokorjaamoksi.
Osoite
Muonamiehentie 12, 00390 Helsinki
Tilatyyppi
Tuotantotilaa
2100 m2
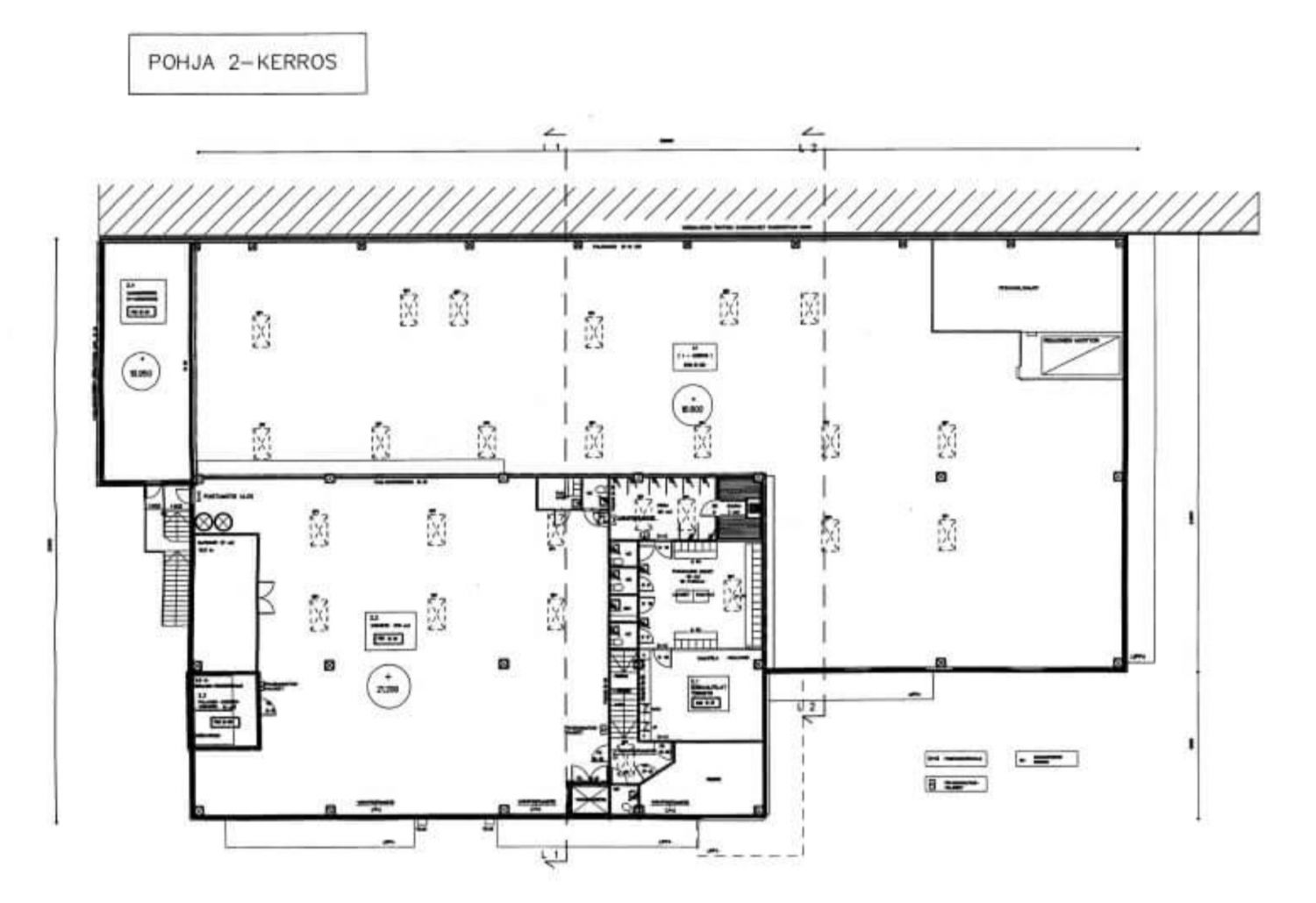
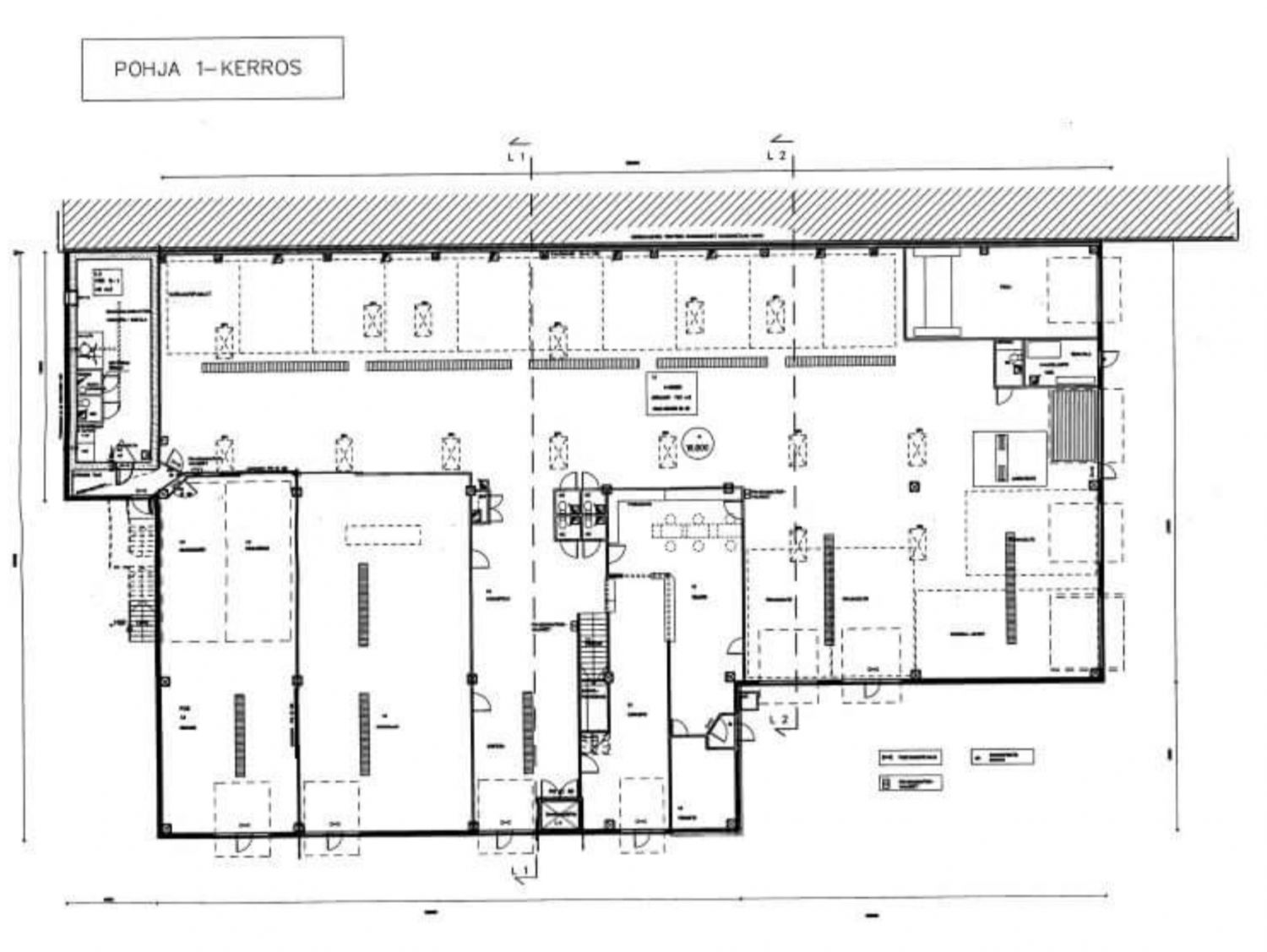
Pohjapiirros
Tila soveltuu
Autokorjaamo
Kiinteistö
Vuokrattavana vuonna 2001 valmistunut, siistikuntoinen ja toiminnallinen 2100 m² toimitilakokonaisuus Helsingin Konalassa. Tila on suunniteltu ja varusteltu autokorjaamokäyttöön, joten toiminta voidaan käynnistää nopeasti ilman raskaita investointeja perusinfraan.
Tilasta löytyy valmiina:
- 2 ajoneuvonostinta
- Jarrudyno
- Öljylinja
- Toimiva pesulinjasto
Henkilökunnan tilat sijaitsevat toisessa kerroksessa. tilasta löytyy toimisto, sosiaalitilat, pukuhuone ja sauna henkilökunnalla.
Kokonaisuus soveltuu erinomaisesti autohuoltoon, korjaamotoimintaan, raskaan kaluston huoltoon tai muuhun tekniseen ajoneuvoalan liiketoimintaan.
Selkeä pohjaratkaisu, hyvät työskentelytilat ja valmiit laitteistot tekevät kohteesta kustannustehokkaan vaihtoehdon toimijalle, joka hakee valmista operatiivista ympäristöä.
Tiloja ei vuokrata erikseen, vaan kokonaisuus vuokrataan yhdelle toimijalle.
Tilasta löytyy valmiina:
- 2 ajoneuvonostinta
- Jarrudyno
- Öljylinja
- Toimiva pesulinjasto
Henkilökunnan tilat sijaitsevat toisessa kerroksessa. tilasta löytyy toimisto, sosiaalitilat, pukuhuone ja sauna henkilökunnalla.
Kokonaisuus soveltuu erinomaisesti autohuoltoon, korjaamotoimintaan, raskaan kaluston huoltoon tai muuhun tekniseen ajoneuvoalan liiketoimintaan.
Selkeä pohjaratkaisu, hyvät työskentelytilat ja valmiit laitteistot tekevät kohteesta kustannustehokkaan vaihtoehdon toimijalle, joka hakee valmista operatiivista ympäristöä.
Tiloja ei vuokrata erikseen, vaan kokonaisuus vuokrataan yhdelle toimijalle.
Sijainti
Kiinteistö sijaitsee Vihdintien ja Kehätien risteyksessä, Konalassa. Alueella toimii runsaasti autoalan, logistiikan ja kaupan yrityksiä.
Pysäköinti
Kiinteistön pihalla.
Palvelut
Lähialueen palvelut:
Kauppakeskus Ristikko
Useita lounasravintoloita
Päivittäistavarakaupat ja yrityspalvelut
Kauppakeskus Ristikko
Useita lounasravintoloita
Päivittäistavarakaupat ja yrityspalvelut
Kulkuyhteydet
Autolla - Nopea yhteys Vihdintielle ja Kehä I:lle
Hyvät yhteydet koko pääkaupunkiseudulle
Sujuva saavutettavuus myös raskaalla kalustolla
Bussi - Useita bussiyhteyksiä Konalan alueelle
Yhteydet Helsingin keskustaan ja lähialueille
Juna - Huopalahden ja Malminkartanon juna-asemat kohtuullisen etäisyyden päässä
Vaihdolliset yhteydet Helsingin keskustaan ja muualle pääkaupunkiseudulle
Hyvät yhteydet koko pääkaupunkiseudulle
Sujuva saavutettavuus myös raskaalla kalustolla
Bussi - Useita bussiyhteyksiä Konalan alueelle
Yhteydet Helsingin keskustaan ja lähialueille
Juna - Huopalahden ja Malminkartanon juna-asemat kohtuullisen etäisyyden päässä
Vaihdolliset yhteydet Helsingin keskustaan ja muualle pääkaupunkiseudulle
Vapautuu
Heti
Katutasossa
Näkyvällä paikalla
Ota yhteyttä
Comreal Oy LKV
Joonas Nilsson
Näytä puhelinnumero
044 328 3425
Ota yhteyttä, niin kerron lisää kohteesta. Huomasithan, että kaikki kohteemme ei ole esillä internetissä. Kerro meille tilatarpeesi, niin autamme sinua etsimään yrityksellesi oikean tilan.
Tilahakumme on maksuton.
Pyydä lisätietoa
