Vuokrataan toimistotilat - Helsinki
Mannerheimintie 113, Ruskeasuo, 00280 Helsinki #10692262
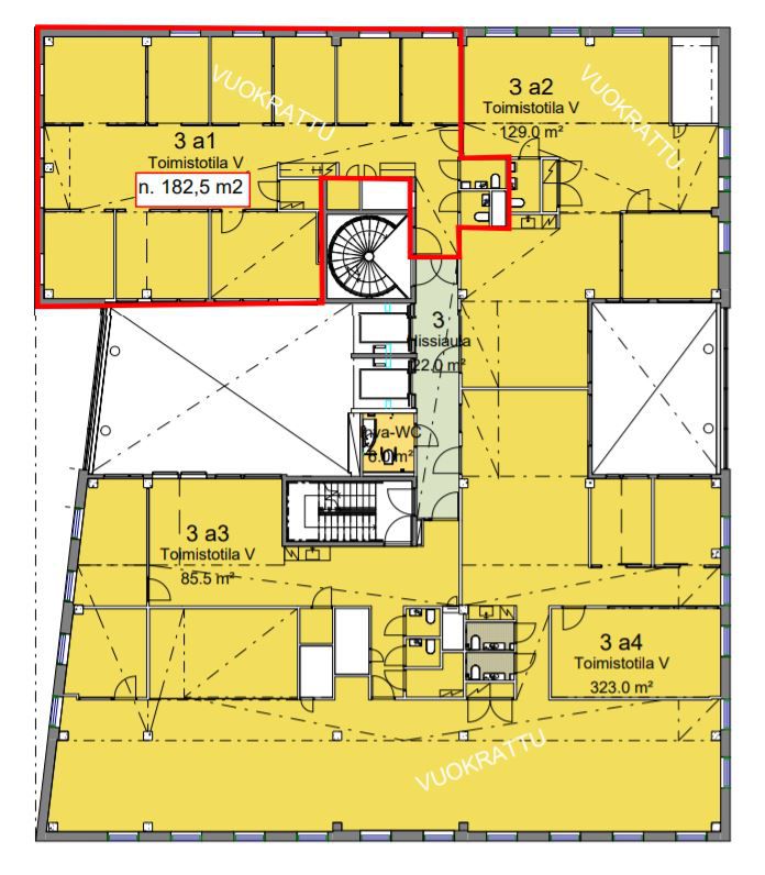
Vuokrattavissa vapautumassa olevaa modernia toimistotilaa näkyvältä paikalta Aitio Business Parkista Mannerheimintieltä.Tämä valoisa huoneista koostuva toimisto sijaitsee Verdi-talon 3. kerroksessa. Toimistossa on oma keittiö ja omat wc-tilat.Aitio Business Parkin toimitilat voidaan muokata käyttäjän toiveiden mukaisesti. Autoilijoille löytyy parkkipaikkoja kiinteistön kolmikerrokisisesta parkkihallista. Hyvät julkiset kulkuyhteydet. Vapautuminen 1.2.2020. Lisätietoja soita 020 730 4530 tai info@repoint.fi. Palvelumme on tilanhakijalle ilmainen.
Repoint Toimitilat Oy
Itälahdenkatu 22 B, 00210 Helsinki
Näytä puhelinnumero
020 730 4530
Lisätietoja soita Näytä puhelinnumero 020 730 4530 tai info@repoint.fi
https://repoint.fi/